Elected Officials
Courts
Departments
Initiatives
Open Government
About
Login / Register
Home
/
Property & Tax Records
/
Property Records
/
Property & Tax Search
/
Parcel Profile
/
Print View
Search for Another Parcel
Parcel Profile
Historical Card
Sketches
Photos
Tax Map
Taxes
Print View
Print This Page
Address: 7299 W LAKE RD
Parcel: 21049060000100
Parcel Profile
Address
7299 | W | LAKE | RD
Street Status
PAVED
School District
FAIRVIEW SCHOOL
Acreage
12.8000
Classification
F
Land Use Code
10-19.99 ACRES
Legal Description
7299 WEST LAKE RD 12.8 AC CAL
Square Feet
4243
Topo
LEVEL
Utility
GAS | WELL | SEPTIC
Zoning
Please contact your municipal zoning officer
Deed Book
0619
Deed Page
0213
2026 Tax Values
Land Value / Taxable
74,300 / 74,300.00
Building Value / Taxable
184,600 / 184,600.00
Total Value / Taxable
258,900 / 258,900.00
Clean & Green
Inactive
Homestead Status
Inactive
Farmstead Status
Inactive
Lerta Amount
0
Lerta Expiration Year
0
Residential Data
Card 1
Style
OLD STYLE
Basement
FULL
Year Built
1928
Exterior Wall
BRICK
Total Living Area
2192
Full Baths
1
Half Baths
1
Fuel Type
GAS
Heating
CENTRAL
Heating System
HOT WATER
Stories
2.0
Total Bedrooms
3
Total Family Rooms
0
Total Rooms
8
Fireplaces
1
Card 2
Style
BUNGALOW
Basement
FULL
Year Built
1941
Exterior Wall
COMPOSITION
Total Living Area
780
Full Baths
1
Half Baths
0
Fuel Type
GAS
Heating
CENTRAL
Heating System
FORCED AIR
Stories
1.0
Total Bedrooms
2
Total Family Rooms
0
Total Rooms
4
Fireplaces
1
Card 3
Style
BUNGALOW
Basement
FULL
Year Built
1900
Exterior Wall
COMPOSITION
Total Living Area
1271
Full Baths
1
Half Baths
0
Fuel Type
GAS
Heating
CENTRAL
Heating System
FORCED AIR
Stories
1.5
Total Bedrooms
3
Total Family Rooms
0
Total Rooms
6
Fireplaces
0
Other Buildings & Yards
Description
Built
Width
Length
Area
BRICK OR STONE DETACHED GAR.
1928
20
20
400
FOUR SIDE CLOSED WD POLE BLDG
2000
28
30
840
Sales History
Sale Date
Type
Price
Book / Page
Other Info
2/22/1999
0
0619 / 0213
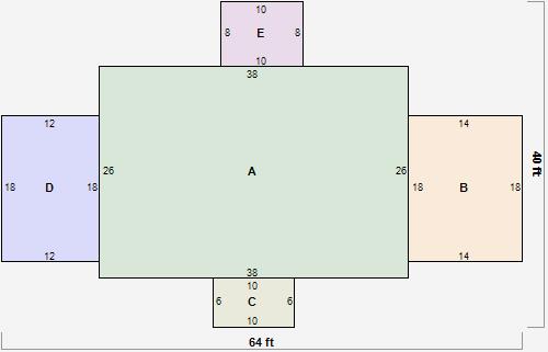
Parcel Sketches
Residential Card 1
A
MAIN
988 square feet
B
CARPT CARPORT
252 square feet
C
MA_PT CONC/MAS PATIO CANPY CANOPY
60 square feet
D
UNFIN BSMT BASEMENT UNFINISHED 1SMAS MASONRY
216 square feet
E
FR UT FRAME UTILITY BUILDING
80 square feet
Residential Card 2
A
MAIN
780 square feet
B
OFP OPEN FRAME PORCH
30 square feet
Residential Card 3
A
MAIN
726 square feet
B
OFP OPEN FRAME PORCH
440 square feet
C
EFP ENCL FRAME PORCH
136 square feet
Parcel Images
Please note:
this tab is for informational purposes only and may not show all delinquencies, see the Taxes tab for more accurate delinquent taxes due.