Elected Officials
Courts
Departments
Initiatives
Open Government
About
Login / Register
Home
/
Property & Tax Records
/
Property Records
/
Property & Tax Search
/
Parcel Profile
/
Print View
Search for Another Parcel
Parcel Profile
Historical Card
Sketches
Photos
Tax Map
Taxes
Print View
Print This Page
Address: 7143 W LAKE RD
Parcel: 21049060000700
Parcel Profile
Address
7143 | W | LAKE | RD
Street Status
PAVED
School District
FAIRVIEW SCHOOL
Acreage
22.4960
Classification
F
Land Use Code
20 - 79.99 ACRES
Legal Description
7143 W LAKE RD LOT 1 22.4960 AC NET
Square Feet
3668
Topo
ROLLING
Utility
GAS | WELL | SEPTIC
Zoning
Please contact your municipal zoning officer
Deed Book
2012
Deed Page
013302
2026 Tax Values
Land Value / Taxable
68,200 / 60,400.00
Building Value / Taxable
210,300 / 210,300.00
Total Value / Taxable
278,500 / 270,700.00
Clean & Green
Active
Homestead Status
Active
Farmstead Status
Inactive
Lerta Amount
0
Lerta Expiration Year
0
Residential Data
Card 1
Style
BUNGALOW
Basement
FULL
Year Built
1936
Exterior Wall
BRICK
Total Living Area
1860
Full Baths
1
Half Baths
0
Fuel Type
GAS
Heating
CENTRAL
Heating System
FORCED AIR
Stories
1.0
Total Bedrooms
4
Total Family Rooms
0
Total Rooms
6
Fireplaces
0
Card 2
Style
OLD STYLE
Basement
FULL
Year Built
1908
Exterior Wall
BRICK
Total Living Area
1808
Full Baths
2
Half Baths
1
Fuel Type
GAS
Heating
CENTRAL
Heating System
FORCED AIR
Stories
2.0
Total Bedrooms
2
Total Family Rooms
1
Total Rooms
6
Fireplaces
2
Other Buildings & Yards
Description
Built
Width
Length
Area
CONCRET PATIO, DETACHED
1999
0
0
324
FOUR SIDE CLOSED WD POLE BLDG
2010
24
24
576
FRAME OR CB DETACHED GARAGE
1972
34
36
1224
FOUR SIDE CLOSED WD POLE BLDG
1972
34
40
1360
FRAME UTILITY SHED
1972
15
16
240
FRAME UTILITY SHED
1980
0
0
620
DETACHED OPEN FR PORCH
1980
10
14
140
FRAME OR CB DETACHED GARAGE
2001
24
40
960
ONE SIDE OPEN MTL POLE BLDG
2003
28
42
1176
FOUR SIDE CLOSED WD POLE BLDG
2000
0
0
1523
CANOPY
1980
8
15
120
CANOPY
2001
9
24
216
Sales History
Sale Date
Type
Price
Book / Page
Other Info
5/23/2012
LAND & BUILDING
0
2012 / 013302
DEED
11/30/2010
LAND & BUILDING
0
2010 / 029917
DEED
11/15/2010
0
2010 / 028574
4/30/1974
0
1118 / 0479
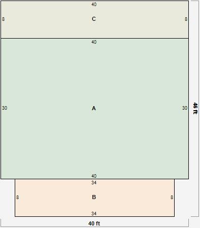
Parcel Sketches
Residential Card 1
A
MAIN
1200 square feet
B
OFP OPEN FRAME PORCH
272 square feet
C
EFP ENCL FRAME PORCH
320 square feet
Residential Card 2
A
MAIN
510 square feet
B
MA STOOP/TERR MAS STOOP
28 square feet
C
EFP ENCL FRAME PORCH
136 square feet
D
OFP OPEN FRAME PORCH WDDCK WOOD DECKS
112 square feet
E
WDDCK WOOD DECKS
120 square feet
F
1S FR ONE STORY FRAME
180 square feet
G
UNFIN BSMT BASEMENT UNFINISHED 1S FR ONE STORY FRAME
300 square feet
Parcel Images
Please note:
this tab is for informational purposes only and may not show all delinquencies, see the Taxes tab for more accurate delinquent taxes due.