Elected Officials
Courts
Departments
Initiatives
Open Government
About
Login / Register
Home
/
Property & Tax Records
/
Property Records
/
Property & Tax Search
/
Parcel Profile
/
Print View
Search for Another Parcel
Parcel Profile
Historical Card
Sketches
Photos
Tax Map
Taxes
Print View
Print This Page
Address: 7131 W LAKE RD
Parcel: 21049060000800
Parcel Profile
Address
7131 | W | LAKE | RD
Street Status
PAVED
School District
FAIRVIEW SCHOOL
Acreage
2.4220
Classification
R
Land Use Code
SINGLE FAMILY
Legal Description
7131 WEST LAKE RD 2.422 AC NET
Square Feet
1920
Topo
LEVEL
Utility
GAS | WELL | SEPTIC
Zoning
Please contact your municipal zoning officer
Deed Book
2015
Deed Page
022887
2026 Tax Values
Land Value / Taxable
39,400 / 39,400.00
Building Value / Taxable
109,210 / 109,210.00
Total Value / Taxable
148,610 / 148,610.00
Clean & Green
Inactive
Homestead Status
Active
Farmstead Status
Inactive
Lerta Amount
0
Lerta Expiration Year
0
Residential Data
Card 1
Style
RANCH
Basement
NONE
Year Built
1935
Exterior Wall
ALUMINUM/VINYL
Total Living Area
1920
Full Baths
1
Half Baths
1
Fuel Type
GAS
Heating
CENTRAL
Heating System
FORCED AIR
Stories
1.0
Total Bedrooms
3
Total Family Rooms
1
Total Rooms
8
Fireplaces
1
Other Buildings & Yards
Description
Built
Width
Length
Area
FRAME OR CB DETACHED GARAGE
1968
24
24
576
FOUR SIDE CLOSED MTL POLE BLDG
1978
24
36
864
14'X'8' SLIDE DOOR
1978
0
0
1
Sales History
Sale Date
Type
Price
Book / Page
Other Info
10/14/2015
LAND & BUILDING
159900
2015 / 022887
DEED
10/24/1955
0
0714 / 0461
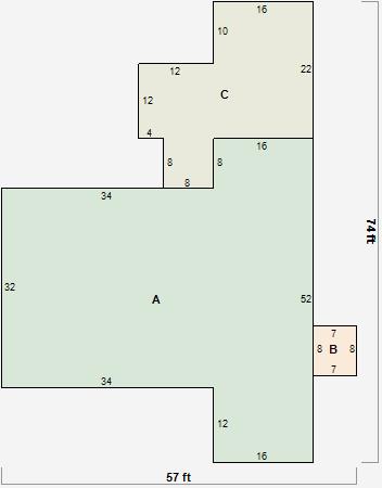
Parcel Sketches
Residential Card 1
A
MAIN
1920 square feet
B
MA STOOP/TERR MAS STOOP
56 square feet
C
WDDCK WOOD DECKS
560 square feet
Parcel Images
Please note:
this tab is for informational purposes only and may not show all delinquencies, see the Taxes tab for more accurate delinquent taxes due.