Elected Officials
Courts
Departments
Initiatives
Open Government
About
Login / Register
Home
/
Property & Tax Records
/
Property Records
/
Property & Tax Search
/
Parcel Profile
/
Print View
Search for Another Parcel
Parcel Profile
Historical Card
Sketches
Photos
Tax Map
Taxes
Print View
Print This Page
Address: 7040 OLD RIDGE RD
Parcel: 21049069001200
Parcel Profile
Address
7040 | OLD RIDGE | RD
Street Status
SEMI IMPROVED
School District
FAIRVIEW SCHOOL
Acreage
21.7560
Classification
F
Land Use Code
20 - 79.99 ACRES
Legal Description
7040 OLD RIDGE RD 21.756 AC
Square Feet
2240
Topo
LEVEL | ROLLING
Utility
GAS | WELL | SEPTIC
Zoning
Please contact your municipal zoning officer
Deed Book
0478
Deed Page
0606
2026 Tax Values
Land Value / Taxable
101,800 / 13,700.00
Building Value / Taxable
111,400 / 111,400.00
Total Value / Taxable
213,200 / 125,100.00
Clean & Green
Active
Homestead Status
Active
Farmstead Status
Active
Lerta Amount
0
Lerta Expiration Year
0
Residential Data
Card 1
Style
OLD STYLE
Basement
FULL
Year Built
1860
Exterior Wall
ALUMINUM/VINYL
Total Living Area
2240
Full Baths
1
Half Baths
0
Fuel Type
GAS
Heating
CENTRAL
Heating System
FORCED AIR
Stories
1.5
Total Bedrooms
4
Total Family Rooms
0
Total Rooms
7
Fireplaces
1
Other Buildings & Yards
Description
Built
Width
Length
Area
FLAT BARN
1860
18
27
486
FLAT BARN
1860
18
24
432
FLAT BARN ADDITION
1860
14
37
518
FLAT BARN
1860
20
38
760
FRAME UTILITY SHED
1920
10
14
140
CONCRETE BLOCK MILKING PARLOR
1920
15
40
600
ATTACHED CB MILK HOUSE
1920
10
14
140
FRAME UTILITY SHED
1860
16
20
320
BANK BARN
1860
40
60
2400
BANK BARN ADDITION
1860
30
60
1800
DAIRY AND HORSE BARNS
1860
46
72
3312
Sales History
Sale Date
Type
Price
Book / Page
Other Info
12/31/1996
LAND & BUILDING
162000
0478 / 0606
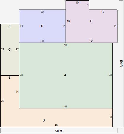
Parcel Sketches
Residential Card 1
A
MAIN
1120 square feet
B
OFP OPEN FRAME PORCH
496 square feet
C
EFP ENCL FRAME PORCH
176 square feet
D
UNFIN BSMT BASEMENT UNFINISHED 1S FR ONE STORY FRAME
280 square feet
E
WDDCK WOOD DECKS
348 square feet
Parcel Images
Please note:
this tab is for informational purposes only and may not show all delinquencies, see the Taxes tab for more accurate delinquent taxes due.