Elected Officials
Courts
Departments
Initiatives
Open Government
About
Login / Register
Home
/
Property & Tax Records
/
Property Records
/
Property & Tax Search
/
Parcel Profile
/
Print View
Search for Another Parcel
Parcel Profile
Historical Card
Sketches
Photos
Tax Map
Taxes
Print View
Print This Page
Address: 6811 OLD RIDGE RD
Parcel: 21051074001800
Parcel Profile
Address
6811 | OLD RIDGE | RD
Street Status
PAVED
School District
FAIRVIEW SCHOOL
Acreage
1.5400
Classification
R
Land Use Code
SINGLE FAMILY
Legal Description
6811 OLD RIDGE RD 1.545AC
Square Feet
3195
Topo
ROLLING
Utility
GAS | WELL | SEPTIC
Zoning
Please contact your municipal zoning officer
Deed Book
0598
Deed Page
2267
2026 Tax Values
Land Value / Taxable
36,400 / 36,400.00
Building Value / Taxable
122,600 / 122,600.00
Total Value / Taxable
159,000 / 159,000.00
Clean & Green
Inactive
Homestead Status
Active
Farmstead Status
Inactive
Lerta Amount
0
Lerta Expiration Year
0
Residential Data
Card 1
Style
OLD STYLE
Basement
FULL
Year Built
1899
Exterior Wall
COMPOSITION
Total Living Area
3195
Full Baths
1
Half Baths
0
Fuel Type
GAS
Heating
CENTRAL A/C
Heating System
FORCED AIR
Stories
2.0
Total Bedrooms
4
Total Family Rooms
1
Total Rooms
8
Fireplaces
0
Other Buildings & Yards
No OBY Data Found
Sales History
Sale Date
Type
Price
Book / Page
Other Info
11/9/1998
LAND & BUILDING
81000
0598 / 2267
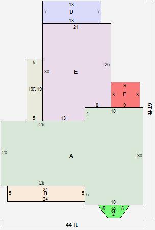
Parcel Sketches
Residential Card 1
A
MAIN
1060 square feet
B
OFP OPEN FRAME PORCH
120 square feet
C
OFP OPEN FRAME PORCH
95 square feet
D
OFP OPEN FRAME PORCH
126 square feet
E
UNFIN BSMT BASEMENT UNFINISHED 1S FR ONE STORY FRAME 1/2FR FRAME HALF-STORY
598 square feet
F
EFP ENCL FRAME PORCH
72 square feet
G
UNFIN BSMT BASEMENT UNFINISHED FRBAY FRAME BAY
28 square feet
Parcel Images
Please note:
this tab is for informational purposes only and may not show all delinquencies, see the Taxes tab for more accurate delinquent taxes due.