Elected Officials
Courts
Departments
Initiatives
Open Government
About
Login / Register
Home
/
Property & Tax Records
/
Property Records
/
Property & Tax Search
/
Parcel Profile
/
Print View
Search for Another Parcel
Parcel Profile
Historical Card
Sketches
Photos
Tax Map
Taxes
Print View
Print This Page
Address: 6590 W RIDGE RD
Parcel: 21054075000300
Parcel Profile
Address
6590 | W | RIDGE | RD
Street Status
PRIVATE
School District
FAIRVIEW SCHOOL
Acreage
5.3900
Classification
R
Land Use Code
MULTIPLE DWELLINGS
Legal Description
6590 W RIDGE RD 5.39 AC
Square Feet
2628
Topo
ROLLING | STEEP
Utility
GAS | WELL | SEPTIC
Zoning
Please contact your municipal zoning officer
Deed Book
2016
Deed Page
021297
2026 Tax Values
Land Value / Taxable
49,700 / 49,700.00
Building Value / Taxable
129,400 / 129,400.00
Total Value / Taxable
179,100 / 179,100.00
Clean & Green
Inactive
Homestead Status
Inactive
Farmstead Status
Inactive
Lerta Amount
0
Lerta Expiration Year
0
Residential Data
Card 1
Style
OTHER
Basement
PART
Year Built
1938
Exterior Wall
FRAME
Total Living Area
2028
Full Baths
1
Half Baths
1
Fuel Type
GAS
Heating
CENTRAL
Heating System
FORCED AIR
Stories
1.5
Total Bedrooms
2
Total Family Rooms
0
Total Rooms
6
Fireplaces
1
Card 2
Style
OTHER
Basement
FULL
Year Built
1986
Exterior Wall
ALUMINUM/VINYL
Total Living Area
600
Full Baths
1
Half Baths
0
Fuel Type
NONE
Heating
NONE
Heating System
NONE
Stories
1.0
Total Bedrooms
1
Total Family Rooms
0
Total Rooms
2
Fireplaces
0
Other Buildings & Yards
Description
Built
Width
Length
Area
DETACHED OPEN FR PORCH
1970
16
16
256
FRAME UTILITY SHED
1990
9
16
144
FRAME UTILITY SHED
1986
12
16
192
ONE SIDE OPEN MTL POLE BLDG
1992
24
60
1440
Sales History
Sale Date
Type
Price
Book / Page
Other Info
9/29/2016
LAND & BUILDING
0
2016 / 021297
DEED
9/16/2016
LAND & BUILDING
143000
2016 / 020085
SPECIAL WARRANTY DEED
12/11/2015
LAND & BUILDING
1414
2015 / 026979
SHERIFF'S DED
12/16/1998
0
0606 / 1304
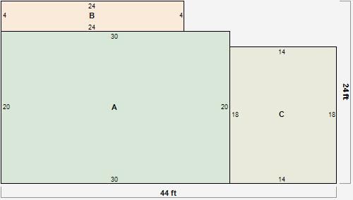
Parcel Sketches
Residential Card 1
A
MAIN
576 square feet
B
MA_PT CONC/MAS PATIO
364 square feet
C
1S FR ONE STORY FRAME
280 square feet
D
1S FR ONE STORY FRAME
740 square feet
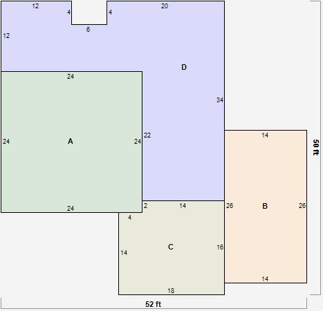
Residential Card 2
A
MAIN
600 square feet
B
OFP OPEN FRAME PORCH WDDCK WOOD DECKS
96 square feet
C
CARPT CARPORT
252 square feet
Parcel Images
Please note:
this tab is for informational purposes only and may not show all delinquencies, see the Taxes tab for more accurate delinquent taxes due.