Elected Officials
Courts
Departments
Initiatives
Open Government
About
Login / Register
Home
/
Property & Tax Records
/
Property Records
/
Property & Tax Search
/
Parcel Profile
/
Print View
Search for Another Parcel
Parcel Profile
Historical Card
Sketches
Photos
Tax Map
Taxes
Print View
Print This Page
Address: 6785 AVONIA RD
Parcel: 21064116002300
Parcel Profile
Address
6785 | AVONIA | RD
Street Status
PAVED
School District
FAIRVIEW SCHOOL
Acreage
0.8851
Classification
R
Land Use Code
SINGLE FAMILY
Legal Description
6785 AVONIA RD 153.1X322.74 IR
Square Feet
896
Topo
ROLLING
Utility
GAS | WELL | SEPTIC
Zoning
Please contact your municipal zoning officer
Deed Book
0066
Deed Page
0317
2026 Tax Values
Land Value / Taxable
30,800 / 30,800.00
Building Value / Taxable
50,000 / 50,000.00
Total Value / Taxable
80,800 / 80,800.00
Clean & Green
Inactive
Homestead Status
Inactive
Farmstead Status
Inactive
Lerta Amount
0
Lerta Expiration Year
0
Residential Data
Card 1
Style
BUNGALOW
Basement
FULL
Year Built
1938
Exterior Wall
ALUMINUM/VINYL
Total Living Area
896
Full Baths
1
Half Baths
0
Fuel Type
OIL
Heating
CENTRAL
Heating System
FORCED AIR
Stories
1.0
Total Bedrooms
3
Total Family Rooms
0
Total Rooms
6
Fireplaces
0
Other Buildings & Yards
Description
Built
Width
Length
Area
FRAME OR CB DETACHED GARAGE
1999
26
26
676
Sales History
Sale Date
Type
Price
Book / Page
Other Info
9/30/1988
0
0066 / 0317
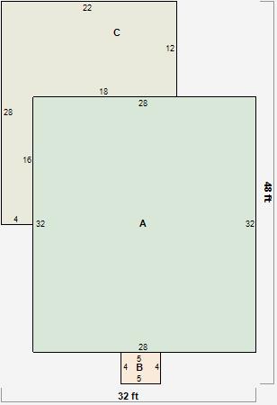
Parcel Sketches
Residential Card 1
A
MAIN
896 square feet
B
MA STOOP/TERR MAS STOOP
20 square feet
C
WDDCK WOOD DECKS
328 square feet
Parcel Images
Please note:
this tab is for informational purposes only and may not show all delinquencies, see the Taxes tab for more accurate delinquent taxes due.