Elected Officials
Courts
Departments
Initiatives
Open Government
About
Login / Register
Home
/
Property & Tax Records
/
Property Records
/
Property & Tax Search
/
Parcel Profile
/
Print View
Search for Another Parcel
Parcel Profile
Historical Card
Sketches
Photos
Tax Map
Taxes
Print View
Print This Page
Address: 8100 BEAR CREEK RD
Parcel: 21070122000500
Parcel Profile
Address
8100 | BEAR CREEK | RD
Street Status
PAVED
School District
FAIRVIEW SCHOOL
Acreage
14.6800
Classification
F
Land Use Code
10-19.99 ACRES
Legal Description
8100 BEAR CREEK RD 14.68 AC
Square Feet
1593
Topo
LEVEL
Utility
GAS | WELL | SEPTIC
Zoning
Please contact your municipal zoning officer
Deed Book
0236
Deed Page
2242
2026 Tax Values
Land Value / Taxable
81,700 / 7,500.00
Building Value / Taxable
100,850 / 100,850.00
Total Value / Taxable
182,550 / 108,350.00
Clean & Green
Active
Homestead Status
Active
Farmstead Status
Inactive
Lerta Amount
0
Lerta Expiration Year
0
Residential Data
Card 1
Style
OLD STYLE
Basement
FULL
Year Built
1890
Exterior Wall
ALUMINUM/VINYL
Total Living Area
1593
Full Baths
2
Half Baths
1
Fuel Type
PROPANE
Heating
CENTRAL
Heating System
HOT WATER
Stories
1.5
Total Bedrooms
3
Total Family Rooms
0
Total Rooms
6
Fireplaces
0
Other Buildings & Yards
Description
Built
Width
Length
Area
BANK BARN
1900
20
42
840
BANK BARN
1900
34
56
1904
FLAT BARN ADDITION
1900
14
56
784
Sales History
Sale Date
Type
Price
Book / Page
Other Info
10/26/1992
0
0236 / 2242
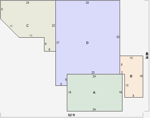
Parcel Sketches
Residential Card 1
A
MAIN
384 square feet
B
OFP OPEN FRAME PORCH
160 square feet
C
WDDCK WOOD DECKS
382 square feet
D
UNFIN BSMT BASEMENT UNFINISHED 1S FR ONE STORY FRAME
921 square feet
Parcel Images
Please note:
this tab is for informational purposes only and may not show all delinquencies, see the Taxes tab for more accurate delinquent taxes due.