Elected Officials
Courts
Departments
Initiatives
Open Government
About
Login / Register
Home
/
Property & Tax Records
/
Property Records
/
Property & Tax Search
/
Parcel Profile
/
Print View
Search for Another Parcel
Parcel Profile
Historical Card
Sketches
Photos
Tax Map
Taxes
Print View
Print This Page
Address: 7025 STERRETTANIA RD
Parcel: 21071124000702
Parcel Profile
Address
7025 | STERRETTANIA | RD
Street Status
PAVED
School District
FAIRVIEW SCHOOL
Acreage
1.4300
Classification
R
Land Use Code
SINGLE FAMILY
Legal Description
7025 STERRETTANIA RD 1.43 AC
Square Feet
967
Topo
LEVEL
Utility
GAS | WELL | SEPTIC
Zoning
Please contact your municipal zoning officer
Deed Book
0054
Deed Page
0964
2026 Tax Values
Land Value / Taxable
30,600 / 30,600.00
Building Value / Taxable
32,700 / 32,700.00
Total Value / Taxable
63,300 / 63,300.00
Clean & Green
Inactive
Homestead Status
Active
Farmstead Status
Inactive
Lerta Amount
0
Lerta Expiration Year
0
Residential Data
Card 1
Style
BUNGALOW
Basement
FULL
Year Built
1880
Exterior Wall
ALUMINUM/VINYL
Total Living Area
967
Full Baths
1
Half Baths
0
Fuel Type
GAS
Heating
CENTRAL
Heating System
FORCED AIR
Stories
1.0
Total Bedrooms
2
Total Family Rooms
0
Total Rooms
5
Fireplaces
0
Other Buildings & Yards
Description
Built
Width
Length
Area
FLAT BARN
1880
26
38
988
Sales History
Sale Date
Type
Price
Book / Page
Other Info
6/21/1988
0
0054 / 0964
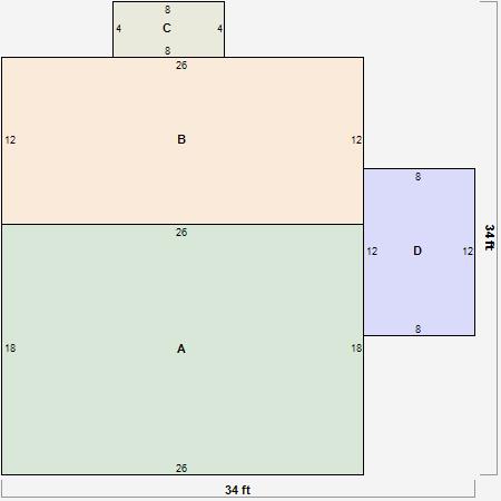
Parcel Sketches
Residential Card 1
A
MAIN
468 square feet
B
UNFIN BSMT BASEMENT UNFINISHED 1S FR ONE STORY FRAME
312 square feet
C
EFP ENCL FRAME PORCH
32 square feet
D
EFP ENCL FRAME PORCH
96 square feet
Parcel Images
Please note:
this tab is for informational purposes only and may not show all delinquencies, see the Taxes tab for more accurate delinquent taxes due.