Elected Officials
Courts
Departments
Initiatives
Open Government
About
Login / Register
Home
/
Property & Tax Records
/
Property Records
/
Property & Tax Search
/
Parcel Profile
/
Print View
Search for Another Parcel
Parcel Profile
Historical Card
Sketches
Photos
Tax Map
Taxes
Print View
Print This Page
Address: 7315 WOOLSEY RD
Parcel: 21072135000300
Parcel Profile
Address
7315 | WOOLSEY | RD
Street Status
PAVED
School District
FAIRVIEW SCHOOL
Acreage
0.9082
Classification
R
Land Use Code
SINGLE FAMILY
Legal Description
7315 WOOLSEY RD 230 X 172
Square Feet
1344
Topo
ROLLING
Utility
WELL
Zoning
Please contact your municipal zoning officer
Deed Book
2017
Deed Page
024332
2026 Tax Values
Land Value / Taxable
31,500 / 31,500.00
Building Value / Taxable
33,570 / 33,570.00
Total Value / Taxable
65,070 / 65,070.00
Clean & Green
Inactive
Homestead Status
Inactive
Farmstead Status
Inactive
Lerta Amount
0
Lerta Expiration Year
0
Residential Data
Card 1
Style
CONVENTIONAL
Basement
FULL
Year Built
1875
Exterior Wall
FRAME
Total Living Area
1344
Full Baths
1
Half Baths
0
Fuel Type
COAL/WOOD
Heating
NONE
Heating System
FORCED AIR
Stories
1.5
Total Bedrooms
2
Total Family Rooms
0
Total Rooms
5
Fireplaces
0
Other Buildings & Yards
Description
Built
Width
Length
Area
FOUR SIDE CLOSED WD POLE BLDG
2004
24
28
672
Sales History
Sale Date
Type
Price
Book / Page
Other Info
11/3/2017
LAND & BUILDING
70000
2017 / 024332
SPECIAL WARRANTY DEED
10/7/1975
0
1176 / 0284
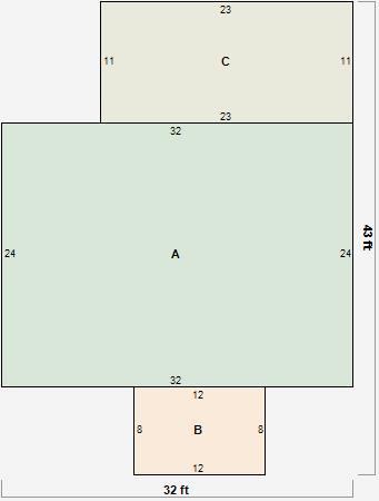
Parcel Sketches
Residential Card 1
A
MAIN
768 square feet
B
WDDCK WOOD DECKS
96 square feet
C
WDDCK WOOD DECKS
253 square feet
Parcel Images
Please note:
this tab is for informational purposes only and may not show all delinquencies, see the Taxes tab for more accurate delinquent taxes due.