Elected Officials
Courts
Departments
Initiatives
Open Government
About
Login / Register
Home
/
Property & Tax Records
/
Property Records
/
Property & Tax Search
/
Parcel Profile
/
Print View
Search for Another Parcel
Parcel Profile
Historical Card
Sketches
Photos
Tax Map
Taxes
Print View
Print This Page
Address: 6985 VAN CAMP RD
Parcel: 21072136000300
Parcel Profile
Address
6985 | VAN CAMP | RD
Street Status
PAVED
School District
FAIRVIEW SCHOOL
Acreage
53.0300
Classification
F
Land Use Code
20 - 79.99 ACRES
Legal Description
6985 VAN CAMP RD 53.03 AC NET
Square Feet
2448
Topo
ROLLING
Utility
WELL | SEPTIC
Zoning
Please contact your municipal zoning officer
Deed Book
2017
Deed Page
005241
2026 Tax Values
Land Value / Taxable
157,900 / 27,800.00
Building Value / Taxable
92,400 / 92,400.00
Total Value / Taxable
250,300 / 120,200.00
Clean & Green
Active
Homestead Status
Active
Farmstead Status
Active
Lerta Amount
0
Lerta Expiration Year
0
Residential Data
Card 1
Style
CONVENTIONAL
Basement
PART
Year Built
1880
Exterior Wall
ALUMINUM/VINYL
Total Living Area
2448
Full Baths
1
Half Baths
0
Fuel Type
OIL
Heating
CENTRAL
Heating System
FORCED AIR
Stories
2.0
Total Bedrooms
4
Total Family Rooms
0
Total Rooms
8
Fireplaces
0
Other Buildings & Yards
Description
Built
Width
Length
Area
FOUR SIDE CLOSED MTL POLE BLDG
2016
30
24
720
Sales History
Sale Date
Type
Price
Book / Page
Other Info
3/15/2017
LAND & BUILDING
0
2017 / 005241
QUIT CLAIM DEED
12/10/1998
LAND & BUILDING
82800
605 / 731
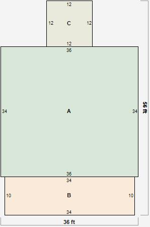
Parcel Sketches
Residential Card 1
A
MAIN
1224 square feet
B
OFP OPEN FRAME PORCH
340 square feet
C
WDDCK WOOD DECKS
144 square feet
Parcel Images
Please note:
this tab is for informational purposes only and may not show all delinquencies, see the Taxes tab for more accurate delinquent taxes due.