Elected Officials
Courts
Departments
Initiatives
Open Government
About
Login / Register
Home
/
Property & Tax Records
/
Property Records
/
Property & Tax Search
/
Parcel Profile
/
Print View
Search for Another Parcel
Parcel Profile
Historical Card
Sketches
Photos
Tax Map
Taxes
Print View
Print This Page
Address: 9010 AVONIA RD
Parcel: 21073130001200
Parcel Profile
Address
9010 | AVONIA | RD
Street Status
PAVED
School District
FAIRVIEW SCHOOL
Acreage
103.1400
Classification
F
Land Use Code
80 ACRES OR MORE
Legal Description
9010 AVONIA & HAWTHORNE 103.14 AC
Square Feet
2467
Topo
ABOVE STREET
Utility
WELL | SEPTIC
Zoning
Please contact your municipal zoning officer
Deed Book
0745
Deed Page
1217
2026 Tax Values
Land Value / Taxable
188,700 / 188,700.00
Building Value / Taxable
129,800 / 129,800.00
Total Value / Taxable
318,500 / 318,500.00
Clean & Green
Inactive
Homestead Status
Inactive
Farmstead Status
Inactive
Lerta Amount
0
Lerta Expiration Year
0
Residential Data
Card 1
Style
BUNGALOW
Basement
FULL
Year Built
1900
Exterior Wall
FRAME
Total Living Area
931
Full Baths
1
Half Baths
0
Fuel Type
GAS
Heating
CENTRAL
Heating System
FORCED AIR
Stories
1.0
Total Bedrooms
3
Total Family Rooms
0
Total Rooms
9
Fireplaces
0
Card 2
Style
CONVENTIONAL
Basement
CRAWL
Year Built
2006
Exterior Wall
ALUMINUM/VINYL
Total Living Area
1536
Full Baths
1
Half Baths
0
Fuel Type
PROPANE
Heating
CENTRAL
Heating System
FORCED AIR
Stories
2.0
Total Bedrooms
2
Total Family Rooms
0
Total Rooms
4
Fireplaces
0
Other Buildings & Yards
Description
Built
Width
Length
Area
BANK BARN
1900
32
54
1728
FRAME OR CB DETACHED GARAGE
2015
20
28
560
Sales History
Sale Date
Type
Price
Book / Page
Other Info
12/29/2000
0
0745 / 1217
10/25/1999
LAND & BUILDING
300000
670 / 1964
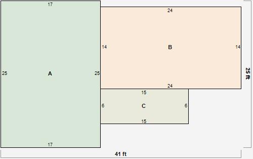
Parcel Sketches
Residential Card 1
A
MAIN
425 square feet
B
1S FR ONE STORY FRAME
336 square feet
C
OFP OPEN FRAME PORCH
90 square feet
Residential Card 2
A
MAIN
768 square feet
Parcel Images
Please note:
this tab is for informational purposes only and may not show all delinquencies, see the Taxes tab for more accurate delinquent taxes due.