Elected Officials
Courts
Departments
Initiatives
Open Government
About
Login / Register
Home
/
Property & Tax Records
/
Property Records
/
Property & Tax Search
/
Parcel Profile
/
Print View
Search for Another Parcel
Parcel Profile
Historical Card
Sketches
Photos
Tax Map
Taxes
Print View
Print This Page
Address: 8423 LUTHER RD
Parcel: 21073132000100
Parcel Profile
Address
8423 | LUTHER | RD
Street Status
PAVED
School District
FAIRVIEW SCHOOL
Acreage
2.9880
Classification
R
Land Use Code
SINGLE FAMILY
Legal Description
8423 LUTHER RD LOT "A" 2.988 AC NET | 4.435 AC GROSS
Square Feet
1397
Topo
LEVEL
Utility
GAS | WELL | SEPTIC
Zoning
Please contact your municipal zoning officer
Deed Book
2019
Deed Page
025782
2025 Tax Values
Land Value / Taxable
41,400 / 41,400.00
Building Value / Taxable
86,370 / 86,370.00
Total Value / Taxable
127,770 / 127,770.00
Clean & Green
Inactive
Homestead Status
Active
Farmstead Status
Inactive
Lerta Amount
0
Lerta Expiration Year
0
Residential Data
Card 1
Style
BUNGALOW
Basement
FULL
Year Built
1935
Exterior Wall
ALUMINUM/VINYL
Total Living Area
1397
Full Baths
1
Half Baths
0
Fuel Type
GAS
Heating
CENTRAL
Heating System
FORCED AIR
Stories
1.0
Total Bedrooms
3
Total Family Rooms
0
Total Rooms
6
Fireplaces
0
Other Buildings & Yards
Description
Built
Width
Length
Area
FLAT BARN
1935
24
20
480
FLAT BARN ADDITION
1935
16
24
384
FLAT BARN ADDITION
1950
11
24
264
FR OR CB ATTACHED GARAGE
1999
14
24
336
Sales History
Sale Date
Type
Price
Book / Page
Other Info
12/13/2019
LAND & BUILDING
620
2019 / 025782
SPECIAL WARRANTY DEED
10/16/1998
LAND & BUILDING
99000
594 / 486
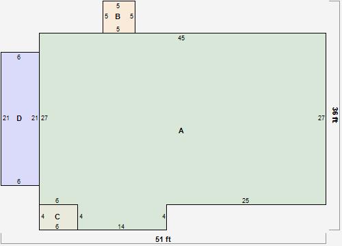
Parcel Sketches
Residential Card 1
A
MAIN
1271 square feet
B
OFP OPEN FRAME PORCH
25 square feet
C
OFP OPEN FRAME PORCH
24 square feet
D
1S FR ONE STORY FRAME
126 square feet
Parcel Images