Elected Officials
Courts
Departments
Initiatives
Open Government
About
Login / Register
Home
/
Property & Tax Records
/
Property Records
/
Property & Tax Search
/
Parcel Profile
/
Print View
Search for Another Parcel
Parcel Profile
Historical Card
Sketches
Photos
Tax Map
Taxes
Print View
Print This Page
Address: 7543 WATER ST
Parcel: 21080023000700
Parcel Profile
Address
7543 | WATER | ST
Street Status
PAVED
School District
FAIRVIEW SCHOOL
Acreage
0.1646
Classification
R
Land Use Code
SINGLE FAMILY
Legal Description
7543 WATER ST 56.08 X 141.26
Square Feet
1502
Topo
ROLLING
Utility
ALL PUBLIC
Zoning
Please contact your municipal zoning officer
Deed Book
2019
Deed Page
018118
2026 Tax Values
Land Value / Taxable
24,500 / 24,500.00
Building Value / Taxable
60,700 / 60,700.00
Total Value / Taxable
85,200 / 85,200.00
Clean & Green
Inactive
Homestead Status
Active
Farmstead Status
Inactive
Lerta Amount
0
Lerta Expiration Year
0
Residential Data
Card 1
Style
CONVENTIONAL
Basement
FULL
Year Built
1917
Exterior Wall
ALUMINUM/VINYL
Total Living Area
1502
Full Baths
1
Half Baths
0
Fuel Type
GAS
Heating
CENTRAL A/C
Heating System
FORCED AIR
Stories
1.5
Total Bedrooms
2
Total Family Rooms
0
Total Rooms
6
Fireplaces
0
Other Buildings & Yards
Description
Built
Width
Length
Area
FRAME OR CB DETACHED GARAGE
1973
16
24
384
FRAME UTILITY SHED
2000
12
7
84
Sales History
Sale Date
Type
Price
Book / Page
Other Info
9/10/2019
LAND & BUILDING
100000
2019 / 018118
SPECIAL WARRANTY DEED
11/17/1986
40900
1658 / 0182
12/8/1976
22900
1246 / 0443
9/6/1967
0
0968 / 0426
9/6/1967
0
0968 / 0428
5/28/1953
0
0651 / 0358
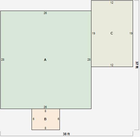
Parcel Sketches
Residential Card 1
A
MAIN
728 square feet
B
MA STOOP/TERR MAS STOOP
48 square feet
C
1S FR ONE STORY FRAME
228 square feet
Parcel Images
Please note:
this tab is for informational purposes only and may not show all delinquencies, see the Taxes tab for more accurate delinquent taxes due.