Elected Officials
Courts
Departments
Initiatives
Open Government
About
Login / Register
Home
/
Property & Tax Records
/
Property Records
/
Property & Tax Search
/
Parcel Profile
/
Print View
Search for Another Parcel
Parcel Profile
Historical Card
Sketches
Photos
Tax Map
Taxes
Print View
Print This Page
Address: 7535 WATER ST
Parcel: 21080023000800
Parcel Profile
Address
7535 | WATER | ST
Street Status
PAVED
School District
FAIRVIEW SCHOOL
Acreage
0.2423
Classification
R
Land Use Code
SINGLE FAMILY
Legal Description
7535 WATER ST 83.32 X 145 IRR
Square Feet
1417
Topo
ROLLING
Utility
WELL | SEPTIC
Zoning
Please contact your municipal zoning officer
Deed Book
2018
Deed Page
011335
2026 Tax Values
Land Value / Taxable
27,200 / 27,200.00
Building Value / Taxable
58,200 / 58,200.00
Total Value / Taxable
85,400 / 85,400.00
Clean & Green
Inactive
Homestead Status
Inactive
Farmstead Status
Inactive
Lerta Amount
0
Lerta Expiration Year
0
Residential Data
Card 1
Style
CONVENTIONAL
Basement
PART
Year Built
1917
Exterior Wall
ALUMINUM/VINYL
Total Living Area
1417
Full Baths
1
Half Baths
0
Fuel Type
GAS
Heating
CENTRAL A/C
Heating System
FORCED AIR
Stories
1.0
Total Bedrooms
2
Total Family Rooms
0
Total Rooms
5
Fireplaces
0
Other Buildings & Yards
Description
Built
Width
Length
Area
FRAME OR CB DETACHED GARAGE
1947
16
26
416
Sales History
Sale Date
Type
Price
Book / Page
Other Info
6/12/2018
LAND & BUILDING
23450
2018 / 011335
SPECIAL WARRANTY DEED
10/25/2017
LAND & BUILDING
1329
2017 / 023434
SHERIFF'S DED
8/8/2002
LAND & BUILDING
70000
0908 / 1705
WARRANTY/SURVIVORSHIP DEED
8/6/2002
LAND & BUILDING
70000
0908 / 0734
WARRANTY/SURVIVORSHIP DEED
7/12/1996
61900
0450 / 0790
11/1/1991
45000
0182 / 1882
8/5/1988
0
0060 / 0272
7/3/1941
0
0414 / 0033
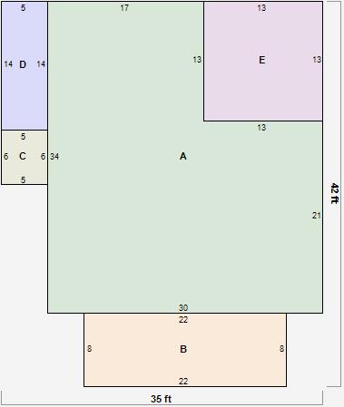
Parcel Sketches
Residential Card 1
A
MAIN
851 square feet
B
OFP OPEN FRAME PORCH
176 square feet
C
OFP OPEN FRAME PORCH
30 square feet
D
1S FR ONE STORY FRAME AT FN ATTIC-FINISHED
70 square feet
E
FR UT FRAME UTILITY BUILDING
169 square feet
Parcel Images