Elected Officials
Courts
Departments
Initiatives
Open Government
About
Login / Register
Home
/
Property & Tax Records
/
Property Records
/
Property & Tax Search
/
Parcel Profile
/
Print View
Search for Another Parcel
Parcel Profile
Historical Card
Sketches
Photos
Tax Map
Taxes
Print View
Print This Page
Address: 7560 WATER ST
Parcel: 21080024000100
Parcel Profile
Address
7560 | WATER | ST
Street Status
PAVED
School District
FAIRVIEW SCHOOL
Acreage
0.3177
Classification
R
Land Use Code
SINGLE FAMILY
Legal Description
7560 WATER ST 123 X 241.56 X 207.5 TRI
Square Feet
1768
Topo
LEVEL
Utility
ALL PUBLIC
Zoning
Please contact your municipal zoning officer
Deed Book
2019
Deed Page
023359
2025 Tax Values
Land Value / Taxable
28,200 / 28,200.00
Building Value / Taxable
64,600 / 64,600.00
Total Value / Taxable
92,800 / 92,800.00
Clean & Green
Inactive
Homestead Status
Inactive
Farmstead Status
Inactive
Lerta Amount
0
Lerta Expiration Year
0
Residential Data
Card 1
Style
OLD STYLE
Basement
FULL
Year Built
1927
Exterior Wall
COMPOSITION
Total Living Area
1768
Full Baths
2
Half Baths
0
Fuel Type
GAS
Heating
CENTRAL
Heating System
FORCED AIR
Stories
2.0
Total Bedrooms
3
Total Family Rooms
0
Total Rooms
6
Fireplaces
0
Other Buildings & Yards
No OBY Data Found
Sales History
Sale Date
Type
Price
Book / Page
Other Info
11/13/2019
LAND & BUILDING
45000
2019 / 023359
DEED
6/21/2018
LAND & BUILDING
0
2018 / 012210
QUIT CLAIM DEED
1/24/2002
LAND & BUILDING
48000
847 / 1753
5/18/1994
52000
0334 / 2325
8/24/1964
0
0902 / 0055
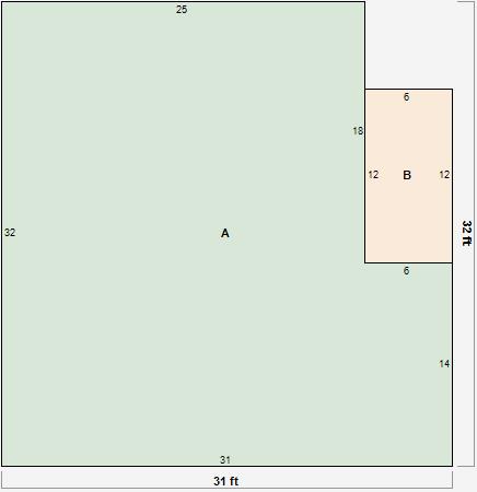
Parcel Sketches
Residential Card 1
A
MAIN
884 square feet
B
OFP OPEN FRAME PORCH
72 square feet
Parcel Images