Elected Officials
Courts
Departments
Initiatives
Open Government
About
Login / Register
Home
/
Property & Tax Records
/
Property Records
/
Property & Tax Search
/
Parcel Profile
/
Print View
Search for Another Parcel
Parcel Profile
Historical Card
Sketches
Photos
Tax Map
Taxes
Print View
Print This Page
Address: 4158 AVONIA RD
Parcel: 21080024000600
Parcel Profile
Address
4158 | AVONIA | RD
Street Status
PAVED
School District
FAIRVIEW SCHOOL
Acreage
0.3350
Classification
R
Land Use Code
SINGLE FAMILY
Legal Description
4158 AVONIA RD 66 X 235.62 IRR
Square Feet
1578
Topo
LEVEL
Utility
ALL PUBLIC
Zoning
Please contact your municipal zoning officer
Deed Book
1659
Deed Page
0133
2025 Tax Values
Land Value / Taxable
28,400 / 28,400.00
Building Value / Taxable
76,700 / 76,700.00
Total Value / Taxable
105,100 / 105,100.00
Clean & Green
Inactive
Homestead Status
Active
Farmstead Status
Inactive
Lerta Amount
0
Lerta Expiration Year
0
Residential Data
Card 1
Style
OLD STYLE
Basement
FULL
Year Built
1917
Exterior Wall
FRAME
Total Living Area
1578
Full Baths
1
Half Baths
0
Fuel Type
GAS
Heating
CENTRAL
Heating System
FORCED AIR
Stories
1.5
Total Bedrooms
3
Total Family Rooms
0
Total Rooms
6
Fireplaces
0
Other Buildings & Yards
Description
Built
Width
Length
Area
BRICK OR STONE DETACHED GAR.
1993
24
28
672
Sales History
Sale Date
Type
Price
Book / Page
Other Info
11/24/1986
39000
1659 / 0133
2/16/1984
13500
1525 / 0538
1/24/1984
0
1523 / 0391
6/20/1967
0
0963 / 0290
6/13/1959
0
0800 / 0330
Parcel Sketches
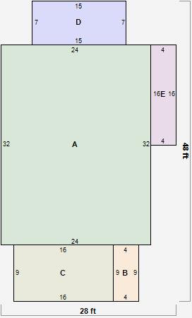
Residential Card 1
A
MAIN
768 square feet
B
OFP OPEN FRAME PORCH
36 square feet
C
1S FR ONE STORY FRAME
144 square feet
D
OFP OPEN FRAME PORCH
105 square feet
E
1S FR ONE STORY FRAME AT FN ATTIC-FINISHED
64 square feet
Parcel Images