Elected Officials
Courts
Departments
Initiatives
Open Government
About
Login / Register
Home
/
Property & Tax Records
/
Property Records
/
Property & Tax Search
/
Parcel Profile
/
Print View
Search for Another Parcel
Parcel Profile
Historical Card
Sketches
Photos
Tax Map
Taxes
Print View
Print This Page
Address: 4129 AVONIA RD
Parcel: 21081026003400
Parcel Profile
Address
4129 | AVONIA | RD
Street Status
PAVED
School District
FAIRVIEW SCHOOL
Acreage
0.2567
Classification
R
Land Use Code
SINGLE FAMILY
Legal Description
4129 AVONIA RD 86 X 130
Square Feet
2816
Topo
LEVEL
Utility
ALL PUBLIC
Zoning
Please contact your municipal zoning officer
Deed Book
2025
Deed Page
001608
2026 Tax Values
Land Value / Taxable
27,400 / 27,400.00
Building Value / Taxable
121,300 / 121,300.00
Total Value / Taxable
148,700 / 148,700.00
Clean & Green
Inactive
Homestead Status
Inactive
Farmstead Status
Inactive
Lerta Amount
0
Lerta Expiration Year
0
Residential Data
Card 1
Style
OLD STYLE
Basement
PART
Year Built
1901
Exterior Wall
ALUMINUM/VINYL
Total Living Area
2816
Full Baths
2
Half Baths
1
Fuel Type
GAS
Heating
CENTRAL
Heating System
HOT WATER
Stories
2.0
Total Bedrooms
4
Total Family Rooms
2
Total Rooms
13
Fireplaces
0
Other Buildings & Yards
Description
Built
Width
Length
Area
FRAME OR CB DETACHED GARAGE
1987
28
24
672
Sales History
Sale Date
Type
Price
Book / Page
Other Info
1/31/2025
LAND & BUILDING
185000
2025 / 001608
SPECIAL WARRANTY DEED
4/30/1986
56300
1626 / 0459
10/6/1978
38000
1323 / 0576
9/15/1977
0
1280 / 0250
9/30/1975
21300
1175 / 0223
11/27/1954
0
0690 / 0141
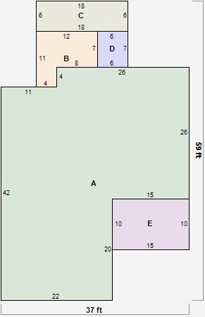
Parcel Sketches
Residential Card 1
A
MAIN
1358 square feet
B
1S FR ONE STORY FRAME
100 square feet
C
WDDCK WOOD DECKS
108 square feet
D
OFP OPEN FRAME PORCH
42 square feet
E
EFP ENCL FRAME PORCH
150 square feet
Parcel Images
Please note:
this tab is for informational purposes only and may not show all delinquencies, see the Taxes tab for more accurate delinquent taxes due.