Elected Officials
Courts
Departments
Initiatives
Open Government
About
Login / Register
Home
/
Property & Tax Records
/
Property Records
/
Property & Tax Search
/
Parcel Profile
/
Print View
Search for Another Parcel
Parcel Profile
Historical Card
Sketches
Photos
Tax Map
Taxes
Print View
Print This Page
Address: 10315 ROUTE 98
Parcel: 22009021002900
Parcel Profile
Address
10315 | ROUTE 98
Street Status
PAVED
School District
GENERAL MCLANE SCHOOL
Acreage
5.0000
Classification
R
Land Use Code
SINGLE FAMILY
Legal Description
10315 ROUTE 98 5 AC
Square Feet
1814
Topo
LEVEL
Utility
WELL | SEPTIC
Zoning
Please contact your municipal zoning officer
Deed Book
0992
Deed Page
1080
2026 Tax Values
Land Value / Taxable
30,500 / 30,500.00
Building Value / Taxable
88,590 / 88,590.00
Total Value / Taxable
119,090 / 119,090.00
Clean & Green
Inactive
Homestead Status
Active
Farmstead Status
Inactive
Lerta Amount
0
Lerta Expiration Year
0
Residential Data
Card 1
Style
CONVENTIONAL
Basement
FULL
Year Built
1920
Exterior Wall
ALUMINUM/VINYL
Total Living Area
1814
Full Baths
2
Half Baths
0
Fuel Type
OIL
Heating
CENTRAL
Heating System
FORCED AIR
Stories
2.0
Total Bedrooms
3
Total Family Rooms
1
Total Rooms
7
Fireplaces
0
Other Buildings & Yards
No OBY Data Found
Sales History
Sale Date
Type
Price
Book / Page
Other Info
3/31/2003
LAND & BUILDING
124900
0992 / 1080
WARRANTY/SURVIVORSHIP DEED
9/15/1999
LAND & BUILDING
65000
662 / 458
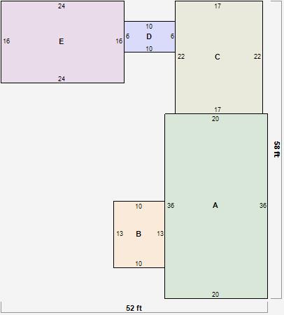
Parcel Sketches
Residential Card 1
A
MAIN
720 square feet
B
EFP ENCL FRAME PORCH
130 square feet
C
UNFIN BSMT BASEMENT UNFINISHED 1S FR ONE STORY FRAME
374 square feet
D
EFP ENCL FRAME PORCH
60 square feet
E
FR GR FRAME GARAGE
384 square feet
Parcel Images
Please note:
this tab is for informational purposes only and may not show all delinquencies, see the Taxes tab for more accurate delinquent taxes due.