Elected Officials
Courts
Departments
Initiatives
Open Government
About
Login / Register
Home
/
Property & Tax Records
/
Property Records
/
Property & Tax Search
/
Parcel Profile
/
Print View
Search for Another Parcel
Parcel Profile
Historical Card
Sketches
Photos
Tax Map
Taxes
Print View
Print This Page
Address: 10979 EUREKA RD
Parcel: 22009022001700
Parcel Profile
Address
10979 | EUREKA | RD
Street Status
PAVED
School District
GENERAL MCLANE SCHOOL
Acreage
53.0000
Classification
F
Land Use Code
20 - 79.99 ACRES
Legal Description
10979 EUREKA RD 53 AC
Square Feet
1152
Topo
LEVEL
Utility
WELL | SEPTIC
Zoning
Please contact your municipal zoning officer
Deed Book
2022
Deed Page
021366
2026 Tax Values
Land Value / Taxable
78,700 / 41,500.00
Building Value / Taxable
69,240 / 69,240.00
Total Value / Taxable
147,940 / 110,740.00
Clean & Green
Active
Homestead Status
Inactive
Farmstead Status
Inactive
Lerta Amount
0
Lerta Expiration Year
0
Residential Data
Card 1
Style
OLD STYLE
Basement
FULL
Year Built
1850
Exterior Wall
COMPOSITION
Total Living Area
1152
Full Baths
1
Half Baths
0
Fuel Type
OIL
Heating
CENTRAL
Heating System
FORCED AIR
Stories
2.0
Total Bedrooms
4
Total Family Rooms
0
Total Rooms
6
Fireplaces
0
Other Buildings & Yards
Description
Built
Width
Length
Area
FRAME OR CB DETACHED GARAGE
1977
24
30
720
Sales History
Sale Date
Type
Price
Book / Page
Other Info
9/30/2022
LAND & BUILDING
300000
2022 / 021366
DEED
10/14/2016
LAND & BUILDING
0
2016 / 022350
QUIT CLAIM DEED
8/4/1962
0
0861 / 0435
Parcel Sketches
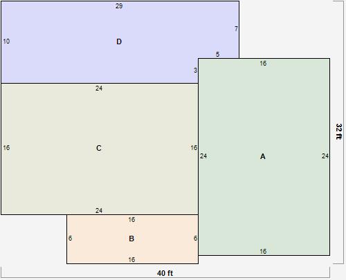
Residential Card 1
A
MAIN
384 square feet
B
EFP ENCL FRAME PORCH
96 square feet
C
UNFIN BSMT BASEMENT UNFINISHED 1S FR ONE STORY FRAME AT UN ATTIC-UNFINISHED
384 square feet
D
EFP ENCL FRAME PORCH
275 square feet
Parcel Images
Please note:
this tab is for informational purposes only and may not show all delinquencies, see the Taxes tab for more accurate delinquent taxes due.