Elected Officials
Courts
Departments
Initiatives
Open Government
About
Login / Register
Home
/
Property & Tax Records
/
Property Records
/
Property & Tax Search
/
Parcel Profile
/
Print View
Search for Another Parcel
Parcel Profile
Historical Card
Sketches
Photos
Tax Map
Taxes
Print View
Print This Page
Address: 10671 ROUTE 98
Parcel: 22012025001301
Parcel Profile
Address
10671 | ROUTE 98
Street Status
PAVED
School District
GENERAL MCLANE SCHOOL
Acreage
2.0300
Classification
R
Land Use Code
SINGLE FAMILY
Legal Description
ROUTE 98 PCL A 2.03 AC
Square Feet
2354
Topo
LEVEL
Utility
WELL | SEPTIC
Zoning
Please contact your municipal zoning officer
Deed Book
2013
Deed Page
017126
2026 Tax Values
Land Value / Taxable
24,100 / 24,100.00
Building Value / Taxable
65,570 / 65,570.00
Total Value / Taxable
89,670 / 89,670.00
Clean & Green
Inactive
Homestead Status
Inactive
Farmstead Status
Inactive
Lerta Amount
0
Lerta Expiration Year
0
Residential Data
Card 1
Style
OLD STYLE
Basement
FULL
Year Built
1910
Exterior Wall
ALUMINUM/VINYL
Total Living Area
2354
Full Baths
1
Half Baths
0
Fuel Type
OIL
Heating
CENTRAL
Heating System
HOT WATER
Stories
2.0
Total Bedrooms
3
Total Family Rooms
0
Total Rooms
6
Fireplaces
0
Other Buildings & Yards
Description
Built
Width
Length
Area
FLAT BARN
1900
20
24
480
METAL SHED
2018
22
25
550
FOUR SIDE CLOSED MTL POLE BLDG
2025
21
26
546
Sales History
Sale Date
Type
Price
Book / Page
Other Info
7/3/2013
LAND & BUILDING
75700
2013 / 017126
DEED
5/28/2004
LAND & BUILDING
89900
1140 / 1172
SPECIAL WARRANTY DEED
3/21/1980
0
1381 / 0536
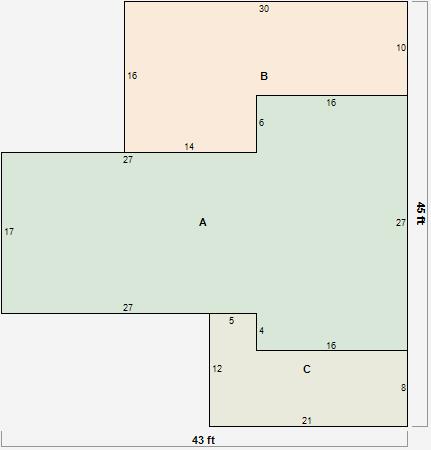
Parcel Sketches
Residential Card 1
A
MAIN
891 square feet
B
1S FR ONE STORY FRAME
384 square feet
C
UNFIN BSMT BASEMENT UNFINISHED 1S FR ONE STORY FRAME
188 square feet
Parcel Images
Please note:
this tab is for informational purposes only and may not show all delinquencies, see the Taxes tab for more accurate delinquent taxes due.