Elected Officials
Courts
Departments
Initiatives
Open Government
About
Login / Register
Home
/
Property & Tax Records
/
Property Records
/
Property & Tax Search
/
Parcel Profile
/
Print View
Search for Another Parcel
Parcel Profile
Historical Card
Sketches
Photos
Tax Map
Taxes
Print View
Print This Page
Address: 11121 ROUTE 98
Parcel: 22012029001200
Parcel Profile
Address
11121 | ROUTE 98
Street Status
PAVED
School District
GENERAL MCLANE SCHOOL
Acreage
143.4900
Classification
F
Land Use Code
80 ACRES OR MORE
Legal Description
11121 STATE ROUTE 98 143.49 AC
Square Feet
1408
Topo
LEVEL
Utility
WELL | SEPTIC
Zoning
Please contact your municipal zoning officer
Deed Book
0062
Deed Page
0403
2026 Tax Values
Land Value / Taxable
213,800 / 70,800.00
Building Value / Taxable
80,600 / 80,600.00
Total Value / Taxable
294,400 / 151,400.00
Clean & Green
Active
Homestead Status
Active
Farmstead Status
Active
Lerta Amount
0
Lerta Expiration Year
0
Residential Data
Card 1
Style
CONVENTIONAL
Basement
FULL
Year Built
1910
Exterior Wall
ALUMINUM/VINYL
Total Living Area
1408
Full Baths
1
Half Baths
0
Fuel Type
OIL
Heating
CENTRAL
Heating System
FORCED AIR
Stories
2.0
Total Bedrooms
4
Total Family Rooms
0
Total Rooms
8
Fireplaces
0
Other Buildings & Yards
Description
Built
Width
Length
Area
FRAME OR CB DETACHED GARAGE
1900
20
20
400
WOOD BOARD CORN CRIB
1997
20
30
600
FRAME UTILITY SHED
1990
20
20
400
1S LEAN TO
1990
6
20
120
CONCRETE STAVE WITH ROOF
1997
16
50
10048
CONCRETE STAVE WITH ROOF
1967
14
50
7693
BANK BARN
1900
40
50
2000
FLAT BARN
1966
36
66
2376
ONE SIDE OPEN MTL POLE BLDG
1974
36
75
2700
ONE SIDE OPEN MTL POLE BLDG
1980
30
40
1200
ATTACHED CB MILK HOUSE
1966
14
20
280
FRAME UTILITY SHED
1900
9
18
162
ONE SIDE OPEN MTL POLE BLDG
1972
32
45
1440
Sales History
Sale Date
Type
Price
Book / Page
Other Info
8/24/1988
0
0062 / 0403
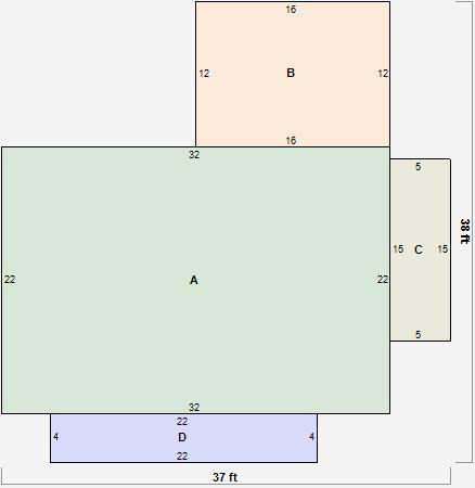
Parcel Sketches
Residential Card 1
A
MAIN
704 square feet
B
EFP ENCL FRAME PORCH
192 square feet
C
CANPY CANOPY
75 square feet
D
OFP OPEN FRAME PORCH
88 square feet
Parcel Images
Please note:
this tab is for informational purposes only and may not show all delinquencies, see the Taxes tab for more accurate delinquent taxes due.