Elected Officials
Courts
Departments
Initiatives
Open Government
About
Login / Register
Home
/
Property & Tax Records
/
Property Records
/
Property & Tax Search
/
Parcel Profile
/
Print View
Search for Another Parcel
Parcel Profile
Historical Card
Sketches
Photos
Tax Map
Taxes
Print View
Print This Page
Address: 11603 EUREKA RD
Parcel: 22012030000800
Parcel Profile
Address
11603 | EUREKA | RD
Street Status
UNPAVED
School District
GENERAL MCLANE SCHOOL
Acreage
73.0000
Classification
F
Land Use Code
20 - 79.99 ACRES
Legal Description
11603 EUREKA RD 73 AC
Square Feet
1317
Topo
LEVEL
Utility
WELL | SEPTIC
Zoning
Please contact your municipal zoning officer
Deed Book
2024
Deed Page
019840
2026 Tax Values
Land Value / Taxable
93,600 / 47,200.00
Building Value / Taxable
74,100 / 74,100.00
Total Value / Taxable
167,700 / 121,300.00
Clean & Green
Active
Homestead Status
Inactive
Farmstead Status
Inactive
Lerta Amount
0
Lerta Expiration Year
0
Residential Data
Card 1
Style
CONVENTIONAL
Basement
FULL
Year Built
1930
Exterior Wall
ALUMINUM/VINYL
Total Living Area
1317
Full Baths
1
Half Baths
1
Fuel Type
COAL/WOOD
Heating
CENTRAL
Heating System
FORCED AIR
Stories
1.0
Total Bedrooms
3
Total Family Rooms
0
Total Rooms
5
Fireplaces
0
Other Buildings & Yards
Description
Built
Width
Length
Area
FRAME OR CB DETACHED GARAGE
1971
20
25
500
FRAME OR CB DETACHED GARAGE
1971
20
25
500
FOUR SIDE CLOSED MTL POLE BLDG
1975
30
50
1500
1S LEAN TO
1975
12
50
600
Sales History
Sale Date
Type
Price
Book / Page
Other Info
12/4/2024
LAND & BUILDING
0
2024 / 019840
DEED
4/8/2015
LAND & BUILDING
200000
2015 / 006533
DEED
5/18/2001
0
0775 / 1678
5/18/2001
0
775 / 1678
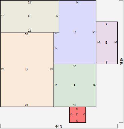
Parcel Sketches
Residential Card 1
A
MAIN
256 square feet
B
UNFIN BSMT BASEMENT UNFINISHED 1S FR ONE STORY FRAME
560 square feet
C
EFP ENCL FRAME PORCH
264 square feet
D
1S FR ONE STORY FRAME
360 square feet
E
EFP ENCL FRAME PORCH
128 square feet
F
MA STOOP/TERR MAS STOOP
36 square feet
Parcel Images
Please note:
this tab is for informational purposes only and may not show all delinquencies, see the Taxes tab for more accurate delinquent taxes due.