Elected Officials
Courts
Departments
Initiatives
Open Government
About
Login / Register
Home
/
Property & Tax Records
/
Property Records
/
Property & Tax Search
/
Parcel Profile
/
Print View
Search for Another Parcel
Parcel Profile
Historical Card
Sketches
Photos
Tax Map
Taxes
Print View
Print This Page
Address: 1407 LAKE ST
Parcel: 23001013000200
Parcel Profile
Address
1407 | LAKE | ST
Street Status
PAVED
School District
GIRARD SCHOOL
Acreage
0.5059
Classification
R
Land Use Code
SINGLE FAMILY
Legal Description
1407 LAKE ST 130.02X363X339.24
Square Feet
1056
Topo
BELOW STREET
Utility
ALL PUBLIC
Zoning
Please contact your municipal zoning officer
Deed Book
1433
Deed Page
1186
2025 Tax Values
Land Value / Taxable
16,900 / 16,900.00
Building Value / Taxable
65,430 / 65,430.00
Total Value / Taxable
82,330 / 82,330.00
Clean & Green
Inactive
Homestead Status
Active
Farmstead Status
Inactive
Lerta Amount
0
Lerta Expiration Year
0
Residential Data
Card 1
Style
OLD STYLE
Basement
FULL
Year Built
1900
Exterior Wall
FRAME
Total Living Area
1056
Full Baths
1
Half Baths
0
Fuel Type
ELECTRIC
Heating
CENTRAL
Heating System
FORCED AIR
Stories
1.5
Total Bedrooms
3
Total Family Rooms
0
Total Rooms
6
Fireplaces
0
Other Buildings & Yards
Description
Built
Width
Length
Area
FOUR SIDE CLOSED MTL POLE BLDG
1994
20
32
640
1S LEAN TO
1994
18
10
180
Sales History
Sale Date
Type
Price
Book / Page
Other Info
6/23/2007
LAND & BUILDING
84000
1433 / 1186
WARRANTY/SURVIVORSHIP DEED
12/9/1994
0
0365 / 2210
12/9/1994
LAND & BUILDING
45800
0365 / 2210
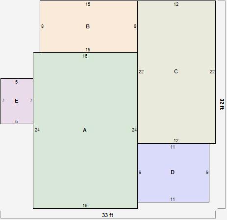
Parcel Sketches
Residential Card 1
A
MAIN
384 square feet
B
1S FR ONE STORY FRAME
120 square feet
C
UNFIN BSMT BASEMENT UNFINISHED 1S FR ONE STORY FRAME
264 square feet
D
OFP OPEN FRAME PORCH
99 square feet
E
EFP ENCL FRAME PORCH
35 square feet
Parcel Images