Elected Officials
Courts
Departments
Initiatives
Open Government
About
Login / Register
Home
/
Property & Tax Records
/
Property Records
/
Property & Tax Search
/
Parcel Profile
/
Print View
Search for Another Parcel
Parcel Profile
Historical Card
Sketches
Photos
Tax Map
Taxes
Print View
Print This Page
Address: 834 MECHANIC ST
Parcel: 23004018000200
Parcel Profile
Address
834 | MECHANIC | ST
Street Status
PAVED | SIDEWALK
School District
GIRARD SCHOOL
Acreage
0.3963
Classification
R
Land Use Code
SINGLE FAMILY
Legal Description
834 MECHANIC ST 126X137.27
Square Feet
912
Topo
LEVEL
Utility
ALL PUBLIC
Zoning
Please contact your municipal zoning officer
Deed Book
1065
Deed Page
0311
2026 Tax Values
Land Value / Taxable
16,000 / 16,000.00
Building Value / Taxable
59,650 / 59,650.00
Total Value / Taxable
75,650 / 75,650.00
Clean & Green
Inactive
Homestead Status
Active
Farmstead Status
Inactive
Lerta Amount
0
Lerta Expiration Year
0
Residential Data
Card 1
Style
BUNGALOW
Basement
PART
Year Built
1936
Exterior Wall
ALUMINUM/VINYL
Total Living Area
912
Full Baths
1
Half Baths
0
Fuel Type
GAS
Heating
CENTRAL
Heating System
FORCED AIR
Stories
1.0
Total Bedrooms
3
Total Family Rooms
0
Total Rooms
7
Fireplaces
0
Other Buildings & Yards
Description
Built
Width
Length
Area
FRAME OR CB DETACHED GARAGE
1963
14
23
322
Sales History
Sale Date
Type
Price
Book / Page
Other Info
4/7/1972
0
1065 / 0311
4/7/1972
LAND & BUILDING
13900
1065 / 0311
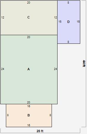
Parcel Sketches
Residential Card 1
A
MAIN
480 square feet
B
OFP OPEN FRAME PORCH
128 square feet
C
1S FR ONE STORY FRAME
240 square feet
D
WDDCK WOOD DECKS
120 square feet
Parcel Images
Please note:
this tab is for informational purposes only and may not show all delinquencies, see the Taxes tab for more accurate delinquent taxes due.