Elected Officials
Courts
Departments
Initiatives
Open Government
About
Login / Register
Home
/
Property & Tax Records
/
Property Records
/
Property & Tax Search
/
Parcel Profile
/
Print View
Search for Another Parcel
Parcel Profile
Historical Card
Sketches
Photos
Tax Map
Taxes
Print View
Print This Page
Address: 803 RICE AVE
Parcel: 23004019000500
Parcel Profile
Address
803 | RICE | AVE
Street Status
PAVED | SIDEWALK
School District
GIRARD SCHOOL
Acreage
0.1937
Classification
R
Land Use Code
SINGLE FAMILY
Legal Description
803 RICE AVE 57 X 132 IRR
Square Feet
570
Topo
LEVEL
Utility
ALL PUBLIC
Zoning
Please contact your municipal zoning officer
Deed Book
2021
Deed Page
023984
2026 Tax Values
Land Value / Taxable
14,300 / 14,300.00
Building Value / Taxable
43,550 / 43,550.00
Total Value / Taxable
57,850 / 57,850.00
Clean & Green
Inactive
Homestead Status
Active
Farmstead Status
Inactive
Lerta Amount
0
Lerta Expiration Year
0
Residential Data
Card 1
Style
BUNGALOW
Basement
FULL
Year Built
1929
Exterior Wall
ALUMINUM/VINYL
Total Living Area
570
Full Baths
1
Half Baths
1
Fuel Type
GAS
Heating
CENTRAL
Heating System
FORCED AIR
Stories
1.0
Total Bedrooms
1
Total Family Rooms
0
Total Rooms
4
Fireplaces
0
Other Buildings & Yards
Description
Built
Width
Length
Area
FRAME OR CB DETACHED GARAGE
1989
12
20
240
Sales History
Sale Date
Type
Price
Book / Page
Other Info
9/7/2021
LAND & BUILDING
92000
2021 / 023984
SPECIAL WARRANTY DEED
3/17/1987
0
0002 / 0938
3/17/1987
LAND & BUILDING
32000
0002 / 0938
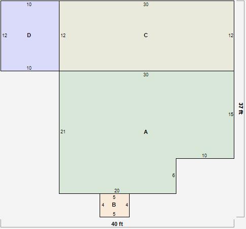
Parcel Sketches
Residential Card 1
A
MAIN
570 square feet
B
OFP OPEN FRAME PORCH
20 square feet
C
EFP ENCL FRAME PORCH
360 square feet
D
MA_PT CONC/MAS PATIO
120 square feet
Parcel Images
Please note:
this tab is for informational purposes only and may not show all delinquencies, see the Taxes tab for more accurate delinquent taxes due.