Elected Officials
Courts
Departments
Initiatives
Open Government
About
Login / Register
Home
/
Property & Tax Records
/
Property Records
/
Property & Tax Search
/
Parcel Profile
/
Print View
Search for Another Parcel
Parcel Profile
Historical Card
Sketches
Photos
Tax Map
Taxes
Print View
Print This Page
Address: 18 HATHAWAY ST
Parcel: 23004020000500
Parcel Profile
Address
18 | HATHAWAY | ST
Street Status
PAVED | SIDEWALK
School District
GIRARD SCHOOL
Acreage
0.2066
Classification
R
Land Use Code
SINGLE FAMILY
Legal Description
18 HATHAWAY ST 85.31X106.65 IR
Square Feet
912
Topo
LEVEL
Utility
ALL PUBLIC
Zoning
Please contact your municipal zoning officer
Deed Book
2021
Deed Page
023214
2026 Tax Values
Land Value / Taxable
14,400 / 14,400.00
Building Value / Taxable
38,500 / 38,500.00
Total Value / Taxable
52,900 / 52,900.00
Clean & Green
Inactive
Homestead Status
Inactive
Farmstead Status
Inactive
Lerta Amount
0
Lerta Expiration Year
0
Residential Data
Card 1
Style
BUNGALOW
Basement
FULL
Year Built
1930
Exterior Wall
ALUMINUM/VINYL
Total Living Area
912
Full Baths
1
Half Baths
0
Fuel Type
GAS
Heating
CENTRAL
Heating System
FORCED AIR
Stories
1.0
Total Bedrooms
2
Total Family Rooms
0
Total Rooms
4
Fireplaces
0
Other Buildings & Yards
No OBY Data Found
Sales History
Sale Date
Type
Price
Book / Page
Other Info
8/30/2021
LAND & BUILDING
129900
2021 / 023214
SPECIAL WARRANTY DEED
1/31/2020
LAND & BUILDING
65000
2020 / 001975
DEED
10/20/2017
LAND & BUILDING
0
2017 / 023047
QUIT CLAIM DEED
5/9/2007
LAND & BUILDING
0
1414 / 1457
SPECIAL WARRANTY DEED
2/27/1987
LAND & BUILDING
31500
1671 / 0118
2/27/1987
0
1671 / 0118
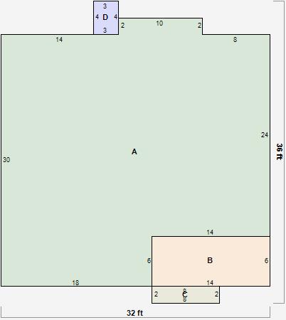
Parcel Sketches
Residential Card 1
A
MAIN
896 square feet
B
OFP OPEN FRAME PORCH
84 square feet
C
FRBAY FRAME BAY
16 square feet
D
OFP OPEN FRAME PORCH
12 square feet
Parcel Images
Please note:
this tab is for informational purposes only and may not show all delinquencies, see the Taxes tab for more accurate delinquent taxes due.