Elected Officials
Courts
Departments
Initiatives
Open Government
About
Login / Register
Home
/
Property & Tax Records
/
Property Records
/
Property & Tax Search
/
Parcel Profile
/
Print View
Search for Another Parcel
Parcel Profile
Historical Card
Sketches
Photos
Tax Map
Taxes
Print View
Print This Page
Address: 511 MECHANIC ST
Parcel: 23008029002001
Parcel Profile
Address
511 | MECHANIC | ST
Street Status
PAVED | SIDEWALK
School District
GIRARD SCHOOL
Acreage
0.2107
Classification
R
Land Use Code
SINGLE FAMILY
Legal Description
511 MECHANIC ST 60 X 152.76 I
Square Feet
1392
Topo
LEVEL
Utility
ALL PUBLIC
Zoning
Please contact your municipal zoning officer
Deed Book
0228
Deed Page
0107
2026 Tax Values
Land Value / Taxable
14,400 / 14,400.00
Building Value / Taxable
57,700 / 57,700.00
Total Value / Taxable
72,100 / 72,100.00
Clean & Green
Inactive
Homestead Status
Active
Farmstead Status
Inactive
Lerta Amount
0
Lerta Expiration Year
0
Residential Data
Card 1
Style
OLD STYLE
Basement
PART
Year Built
1892
Exterior Wall
ALUMINUM/VINYL
Total Living Area
1392
Full Baths
1
Half Baths
1
Fuel Type
GAS
Heating
CENTRAL
Heating System
FORCED AIR
Stories
2.0
Total Bedrooms
3
Total Family Rooms
0
Total Rooms
6
Fireplaces
0
Other Buildings & Yards
No OBY Data Found
Sales History
Sale Date
Type
Price
Book / Page
Other Info
8/28/1992
0
0228 / 0107
8/28/1992
LAND & BUILDING
37500
0228 / 0107
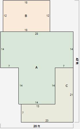
Parcel Sketches
Residential Card 1
A
MAIN
588 square feet
B
1S FR ONE STORY FRAME
216 square feet
C
EFP ENCL FRAME PORCH
238 square feet
Parcel Images
Please note:
this tab is for informational purposes only and may not show all delinquencies, see the Taxes tab for more accurate delinquent taxes due.