Elected Officials
Courts
Departments
Initiatives
Open Government
About
Login / Register
Home
/
Property & Tax Records
/
Property Records
/
Property & Tax Search
/
Parcel Profile
/
Print View
Search for Another Parcel
Parcel Profile
Historical Card
Sketches
Photos
Tax Map
Taxes
Print View
Print This Page
Address: 521 OLIN AVE
Parcel: 23008030001100
Parcel Profile
Address
521 | OLIN | AVE
Street Status
PAVED | SIDEWALK
School District
GIRARD SCHOOL
Acreage
0.4583
Classification
R
Land Use Code
SINGLE FAMILY
Legal Description
521 OLIN AVE 72.6X275
Square Feet
1152
Topo
LEVEL
Utility
ALL PUBLIC
Zoning
Please contact your municipal zoning officer
Deed Book
2023
Deed Page
020058
2026 Tax Values
Land Value / Taxable
14,800 / 14,800.00
Building Value / Taxable
54,660 / 54,660.00
Total Value / Taxable
69,460 / 69,460.00
Clean & Green
Inactive
Homestead Status
Inactive
Farmstead Status
Inactive
Lerta Amount
0
Lerta Expiration Year
0
Residential Data
Card 1
Style
OLD STYLE
Basement
FULL
Year Built
1930
Exterior Wall
ALUMINUM/VINYL
Total Living Area
1152
Full Baths
1
Half Baths
0
Fuel Type
GAS
Heating
CENTRAL
Heating System
FORCED AIR
Stories
2.0
Total Bedrooms
3
Total Family Rooms
0
Total Rooms
7
Fireplaces
0
Other Buildings & Yards
Description
Built
Width
Length
Area
FRAME OR CB DETACHED GARAGE
1930
16
20
320
Sales History
Sale Date
Type
Price
Book / Page
Other Info
11/17/2023
LAND & BUILDING
67000
2023 / 020058
DEED
7/26/1967
0
0965 / 0690
7/26/1967
LAND & BUILDING
0
0965 / 0690
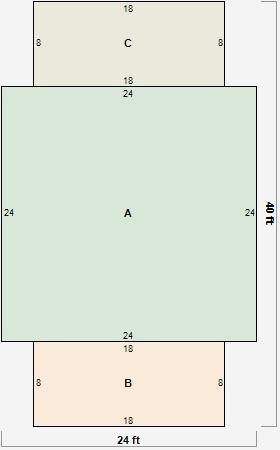
Parcel Sketches
Residential Card 1
A
MAIN
576 square feet
B
OFP OPEN FRAME PORCH
144 square feet
C
EFP ENCL FRAME PORCH WDDCK WOOD DECKS
144 square feet
Parcel Images
Please note:
this tab is for informational purposes only and may not show all delinquencies, see the Taxes tab for more accurate delinquent taxes due.