Elected Officials
Courts
Departments
Initiatives
Open Government
About
Login / Register
Home
/
Property & Tax Records
/
Property Records
/
Property & Tax Search
/
Parcel Profile
/
Print View
Search for Another Parcel
Parcel Profile
Historical Card
Sketches
Photos
Tax Map
Taxes
Print View
Print This Page
Address: 702 LAKE ST
Parcel: 23009001002000
Parcel Profile
Address
702 | LAKE | ST
Street Status
PAVED | SIDEWALK
School District
GIRARD SCHOOL
Acreage
0.6302
Classification
R
Land Use Code
SINGLE FAMILY
Legal Description
702 LAKE ST 206.22X196.89 IRR
Square Feet
2194
Topo
LEVEL
Utility
ALL PUBLIC
Zoning
Please contact your municipal zoning officer
Deed Book
1334
Deed Page
0275
2026 Tax Values
Land Value / Taxable
17,900 / 17,900.00
Building Value / Taxable
120,040 / 120,040.00
Total Value / Taxable
137,940 / 137,940.00
Clean & Green
Inactive
Homestead Status
Active
Farmstead Status
Inactive
Lerta Amount
0
Lerta Expiration Year
0
Residential Data
Card 1
Style
OLD STYLE
Basement
PART
Year Built
1900
Exterior Wall
ALUMINUM/VINYL
Total Living Area
2194
Full Baths
1
Half Baths
1
Fuel Type
GAS
Heating
CENTRAL
Heating System
FORCED AIR
Stories
2.0
Total Bedrooms
4
Total Family Rooms
0
Total Rooms
7
Fireplaces
0
Other Buildings & Yards
Description
Built
Width
Length
Area
FRAME OR CB DETACHED GARAGE
1985
32
28
896
FRAME UTILITY SHED
2013
10
16
160
Sales History
Sale Date
Type
Price
Book / Page
Other Info
6/5/2006
LAND & BUILDING
127000
1334 / 0275
WARRANTY/SURVIVORSHIP DEED
1/17/2003
LAND & BUILDING
120900
0967 / 2104
WARRANTY/SURVIVORSHIP DEED
11/30/2001
LAND & BUILDING
119900
0830 / 0058
12/6/1999
LAND
22060
677 / 881
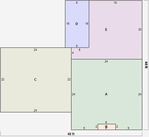
Parcel Sketches
Residential Card 1
A
MAIN
564 square feet
B
OFP OPEN FRAME PORCH
12 square feet
C
1S FR ONE STORY FRAME
528 square feet
D
OFP OPEN FRAME PORCH
128 square feet
E
1S FR ONE STORY FRAME AT FN ATTIC-FINISHED
384 square feet
Parcel Images
Please note:
this tab is for informational purposes only and may not show all delinquencies, see the Taxes tab for more accurate delinquent taxes due.