Elected Officials
Courts
Departments
Initiatives
Open Government
About
Login / Register
Home
/
Property & Tax Records
/
Property Records
/
Property & Tax Search
/
Parcel Profile
/
Print View
Search for Another Parcel
Parcel Profile
Historical Card
Sketches
Photos
Tax Map
Taxes
Print View
Print This Page
Address: 540 LAKE ST
Parcel: 23009003000400
Parcel Profile
Address
540 | LAKE | ST
Street Status
PAVED | SIDEWALK
School District
GIRARD SCHOOL
Acreage
0.1940
Classification
R
Land Use Code
SINGLE FAMILY
Legal Description
540 LAKE ST L 8 65X130
Square Feet
1088
Topo
LEVEL
Utility
ALL PUBLIC
Zoning
Please contact your municipal zoning officer
Deed Book
1501
Deed Page
1022
2026 Tax Values
Land Value / Taxable
14,300 / 14,300.00
Building Value / Taxable
86,910 / 86,910.00
Total Value / Taxable
101,210 / 101,210.00
Clean & Green
Inactive
Homestead Status
Active
Farmstead Status
Inactive
Lerta Amount
0
Lerta Expiration Year
0
Residential Data
Card 1
Style
RANCH
Basement
FULL
Year Built
1936
Exterior Wall
ALUMINUM/VINYL
Total Living Area
1088
Full Baths
1
Half Baths
0
Fuel Type
GAS
Heating
CENTRAL
Heating System
FORCED AIR
Stories
1.0
Total Bedrooms
2
Total Family Rooms
0
Total Rooms
5
Fireplaces
0
Other Buildings & Yards
Description
Built
Width
Length
Area
FRAME OR CB DETACHED GARAGE
1936
24
14
336
Sales History
Sale Date
Type
Price
Book / Page
Other Info
6/12/2008
LAND & BUILDING
95000
1501 / 1022
WARRANTY/SURVIVORSHIP DEED
9/13/2007
LAND & BUILDING
91500
1446 / 2084
WARRANTY/SURVIVORSHIP DEED
12/3/2001
LAND & BUILDING
67500
0830 / 1758
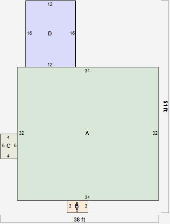
Parcel Sketches
Residential Card 1
A
MAIN
1088 square feet
B
MA STOOP/TERR MAS STOOP
15 square feet
C
MA STOOP/TERR MAS STOOP
24 square feet
D
WDDCK WOOD DECKS
192 square feet
Parcel Images
Please note:
this tab is for informational purposes only and may not show all delinquencies, see the Taxes tab for more accurate delinquent taxes due.