Elected Officials
Courts
Departments
Initiatives
Open Government
About
Login / Register
Home
/
Property & Tax Records
/
Property Records
/
Property & Tax Search
/
Parcel Profile
/
Print View
Search for Another Parcel
Parcel Profile
Historical Card
Sketches
Photos
Tax Map
Taxes
Print View
Print This Page
Address: 220 WILCOX ST
Parcel: 23009007000900
Parcel Profile
Address
220 | WILCOX | ST
Street Status
PAVED | SIDEWALK
School District
GIRARD SCHOOL
Acreage
0.1389
Classification
R
Land Use Code
SINGLE FAMILY
Legal Description
220 WILCOX ST 50 X 121
Square Feet
1470
Topo
LEVEL
Utility
ALL PUBLIC
Zoning
Please contact your municipal zoning officer
Deed Book
0723
Deed Page
1261
2026 Tax Values
Land Value / Taxable
13,200 / 13,200.00
Building Value / Taxable
83,660 / 83,660.00
Total Value / Taxable
96,860 / 96,860.00
Clean & Green
Inactive
Homestead Status
Active
Farmstead Status
Inactive
Lerta Amount
0
Lerta Expiration Year
0
Residential Data
Card 1
Style
OLD STYLE
Basement
FULL
Year Built
1930
Exterior Wall
ALUMINUM/VINYL
Total Living Area
1470
Full Baths
1
Half Baths
0
Fuel Type
GAS
Heating
CENTRAL A/C
Heating System
FORCED AIR
Stories
1.5
Total Bedrooms
4
Total Family Rooms
0
Total Rooms
7
Fireplaces
0
Other Buildings & Yards
Description
Built
Width
Length
Area
FRAME OR CB DETACHED GARAGE
1992
24
24
576
Sales History
Sale Date
Type
Price
Book / Page
Other Info
8/29/2000
0
0723 / 1261
8/29/2000
LAND & BUILDING
0
0723 / 1261
AFFIDAVIT
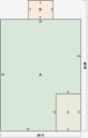
Parcel Sketches
Residential Card 1
A
MAIN
840 square feet
B
EFP ENCL FRAME PORCH
48 square feet
C
OFP OPEN FRAME PORCH
96 square feet
Parcel Images
Please note:
this tab is for informational purposes only and may not show all delinquencies, see the Taxes tab for more accurate delinquent taxes due.