Elected Officials
Courts
Departments
Initiatives
Open Government
About
Login / Register
Home
/
Property & Tax Records
/
Property Records
/
Property & Tax Search
/
Parcel Profile
/
Print View
Search for Another Parcel
Parcel Profile
Historical Card
Sketches
Photos
Tax Map
Taxes
Print View
Print This Page
Address: 516 RICE AVE
Parcel: 23009008000300
Parcel Profile
Address
516 | RICE | AVE
Street Status
PAVED | SIDEWALK
School District
GIRARD SCHOOL
Acreage
0.2600
Classification
R
Land Use Code
SINGLE FAMILY
Legal Description
516 RICE AVE LOT 36 PT LT 37
Square Feet
1697
Topo
LEVEL
Utility
ALL PUBLIC
Zoning
Please contact your municipal zoning officer
Deed Book
0324
Deed Page
1038
2026 Tax Values
Land Value / Taxable
14,800 / 14,800.00
Building Value / Taxable
81,830 / 81,830.00
Total Value / Taxable
96,630 / 96,630.00
Clean & Green
Inactive
Homestead Status
Active
Farmstead Status
Inactive
Lerta Amount
0
Lerta Expiration Year
0
Residential Data
Card 1
Style
OLD STYLE
Basement
FULL
Year Built
1937
Exterior Wall
COMPOSITION
Total Living Area
1697
Full Baths
1
Half Baths
0
Fuel Type
GAS
Heating
CENTRAL
Heating System
FORCED AIR
Stories
1.5
Total Bedrooms
3
Total Family Rooms
1
Total Rooms
8
Fireplaces
1
Other Buildings & Yards
Description
Built
Width
Length
Area
FRAME OR CB DETACHED GARAGE
1937
18
26
468
FRAME UTILITY SHED
1940
8
12
96
Sales History
Sale Date
Type
Price
Book / Page
Other Info
3/18/1994
0
0324 / 1038
3/18/1994
LAND & BUILDING
90000
0324 / 1038
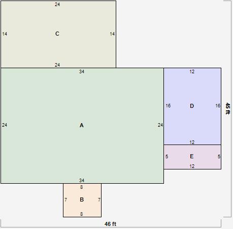
Parcel Sketches
Residential Card 1
A
MAIN
816 square feet
B
MA STOOP/TERR MAS STOOP
56 square feet
C
EFP ENCL FRAME PORCH
336 square feet
D
UNFIN BSMT BASEMENT UNFINISHED 1S FR ONE STORY FRAME AT FN ATTIC-FINISHED
192 square feet
E
OFP OPEN FRAME PORCH
60 square feet
Parcel Images
Please note:
this tab is for informational purposes only and may not show all delinquencies, see the Taxes tab for more accurate delinquent taxes due.