Elected Officials
Courts
Departments
Initiatives
Open Government
About
Login / Register
Home
/
Property & Tax Records
/
Property Records
/
Property & Tax Search
/
Parcel Profile
/
Print View
Search for Another Parcel
Parcel Profile
Historical Card
Sketches
Photos
Tax Map
Taxes
Print View
Print This Page
Address: 714 RICE AVE
Parcel: 23009011000700
Parcel Profile
Address
714 | RICE | AVE
Street Status
PAVED | SIDEWALK
School District
GIRARD SCHOOL
Acreage
0.5171
Classification
R
Land Use Code
THREE FAMILY
Legal Description
714 RICE AVE 179.89X162.88 IRR
Square Feet
2546
Topo
LEVEL
Utility
ALL PUBLIC
Zoning
Please contact your municipal zoning officer
Deed Book
2025
Deed Page
020647
2026 Tax Values
Land Value / Taxable
17,000 / 17,000.00
Building Value / Taxable
77,700 / 77,700.00
Total Value / Taxable
94,700 / 94,700.00
Clean & Green
Inactive
Homestead Status
Inactive
Farmstead Status
Inactive
Lerta Amount
0
Lerta Expiration Year
0
Residential Data
Card 1
Style
OLD STYLE
Basement
FULL
Year Built
1864
Exterior Wall
ALUMINUM/VINYL
Total Living Area
2546
Full Baths
3
Half Baths
0
Fuel Type
GAS
Heating
CENTRAL
Heating System
FORCED AIR
Stories
2.0
Total Bedrooms
5
Total Family Rooms
0
Total Rooms
11
Fireplaces
0
Other Buildings & Yards
No OBY Data Found
Sales History
Sale Date
Type
Price
Book / Page
Other Info
11/19/2025
LAND & BUILDING
160000
2025 / 020647
SPECIAL WARRANTY DEED
1/3/1989
0
0074 / 1979
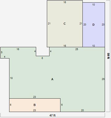
Parcel Sketches
Residential Card 1
A
MAIN
1105 square feet
B
OFP OPEN FRAME PORCH
138 square feet
C
1S FR ONE STORY FRAME
336 square feet
D
WDDCK WOOD DECKS
200 square feet
Parcel Images
Please note:
this tab is for informational purposes only and may not show all delinquencies, see the Taxes tab for more accurate delinquent taxes due.