Elected Officials
Courts
Departments
Initiatives
Open Government
About
Login / Register
Home
/
Property & Tax Records
/
Property Records
/
Property & Tax Search
/
Parcel Profile
/
Print View
Search for Another Parcel
Parcel Profile
Historical Card
Sketches
Photos
Tax Map
Taxes
Print View
Print This Page
Address: 646 MECHANIC ST
Parcel: 23009021000100
Parcel Profile
Address
646 | MECHANIC | ST
Street Status
PAVED | SIDEWALK
School District
GIRARD SCHOOL
Acreage
0.2711
Classification
R
Land Use Code
SINGLE FAMILY
Legal Description
646 MECHANIC ST 66.62X161 IRR
Square Feet
1610
Topo
LEVEL
Utility
ALL PUBLIC
Zoning
Please contact your municipal zoning officer
Deed Book
2016
Deed Page
015195
2026 Tax Values
Land Value / Taxable
14,900 / 14,900.00
Building Value / Taxable
67,100 / 67,100.00
Total Value / Taxable
82,000 / 82,000.00
Clean & Green
Inactive
Homestead Status
Active
Farmstead Status
Inactive
Lerta Amount
0
Lerta Expiration Year
0
Residential Data
Card 1
Style
OLD STYLE
Basement
PART
Year Built
1880
Exterior Wall
ALUMINUM/VINYL
Total Living Area
1610
Full Baths
1
Half Baths
1
Fuel Type
GAS
Heating
CENTRAL
Heating System
FORCED AIR
Stories
2.0
Total Bedrooms
3
Total Family Rooms
0
Total Rooms
6
Fireplaces
0
Other Buildings & Yards
Description
Built
Width
Length
Area
FRAME OR CB DETACHED GARAGE
2010
12
26
312
FRAME UTILITY SHED
2009
12
16
192
Sales History
Sale Date
Type
Price
Book / Page
Other Info
7/20/2016
LAND & BUILDING
0
2016 / 015195
QUIT CLAIM DEED
1/1/1963
0
0887 / 0156
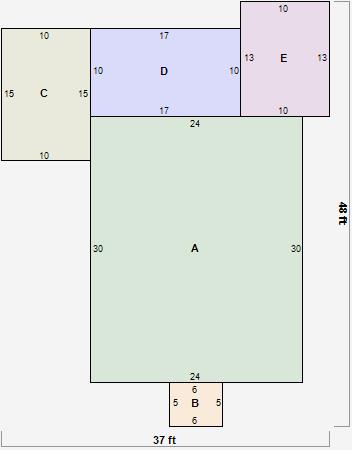
Parcel Sketches
Residential Card 1
A
MAIN
720 square feet
B
OFP OPEN FRAME PORCH
30 square feet
C
MA_PT CONC/MAS PATIO
150 square feet
D
1S FR ONE STORY FRAME
170 square feet
E
OFP OPEN FRAME PORCH
130 square feet
Parcel Images
Please note:
this tab is for informational purposes only and may not show all delinquencies, see the Taxes tab for more accurate delinquent taxes due.