Elected Officials
Courts
Departments
Initiatives
Open Government
About
Login / Register
Home
/
Property & Tax Records
/
Property Records
/
Property & Tax Search
/
Parcel Profile
/
Print View
Search for Another Parcel
Parcel Profile
Historical Card
Sketches
Photos
Tax Map
Taxes
Print View
Print This Page
Address: 320 LAKE ST
Parcel: 23011001004900
Parcel Profile
Address
320 | LAKE | ST
Street Status
PAVED
School District
GIRARD SCHOOL
Acreage
0.4128
Classification
R
Land Use Code
SINGLE FAMILY
Legal Description
320 LAKE ST 247.75 X 144.8 IRR
Square Feet
2672
Topo
STEEP
Utility
ALL PUBLIC
Zoning
Please contact your municipal zoning officer
Deed Book
0881
Deed Page
1914
2026 Tax Values
Land Value / Taxable
16,100 / 16,100.00
Building Value / Taxable
117,580 / 117,580.00
Total Value / Taxable
133,680 / 133,680.00
Clean & Green
Inactive
Homestead Status
Inactive
Farmstead Status
Inactive
Lerta Amount
0
Lerta Expiration Year
0
Residential Data
Card 1
Style
OLD STYLE
Basement
FULL
Year Built
1931
Exterior Wall
FRAME
Total Living Area
2672
Full Baths
1
Half Baths
1
Fuel Type
GAS
Heating
CENTRAL
Heating System
HOT WATER
Stories
2.0
Total Bedrooms
4
Total Family Rooms
1
Total Rooms
8
Fireplaces
1
Other Buildings & Yards
Description
Built
Width
Length
Area
FRAME OR CB DETACHED GARAGE
1930
18
21
378
FRAME UTILITY SHED
1940
16
16
256
FRAME UTILITY SHED
2002
8
8
64
Sales History
Sale Date
Type
Price
Book / Page
Other Info
5/20/2002
LAND & BUILDING
123000
0881 / 1914
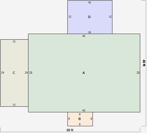
Parcel Sketches
Residential Card 1
A
MAIN
1120 square feet
B
MA STOOP/TERR MAS STOOP
45 square feet
C
1S FR ONE STORY FRAME OFP OPEN FRAME PORCH
240 square feet
D
EFP ENCL FRAME PORCH 1S FR ONE STORY FRAME
192 square feet
Parcel Images
Please note:
this tab is for informational purposes only and may not show all delinquencies, see the Taxes tab for more accurate delinquent taxes due.