Address: 212 RICE AVE   Parcel: 23011005000400
Parcel Profile
Address212 | RICE | AVE
Street StatusPAVED | SIDEWALK
School DistrictGIRARD SCHOOL
Acreage0.2755
ClassificationR
Land Use CodeSINGLE FAMILY
Legal Description212 RICE AVE 191.14X82.42IR
Square Feet2075
TopoLEVEL
UtilityALL PUBLIC
ZoningPlease contact your municipal zoning officer
Deed Book1002
Deed Page0406
2025 Tax Values
Land Value / Taxable15,000 / 15,000.00
Building Value / Taxable108,570 / 108,570.00
Total Value / Taxable123,570 / 123,570.00
Clean & GreenInactive
Homestead StatusActive
Farmstead StatusInactive
Lerta Amount0
Lerta Expiration Year0
Residential Data
Card 1
     StyleOLD STYLE
     BasementFULL
     Year Built1900
     Exterior WallALUMINUM/VINYL
     Total Living Area2075
     Full Baths1
     Half Baths1
     Fuel TypeGAS
     HeatingCENTRAL A/C
     Heating SystemFORCED AIR
     Stories2.0
     Total Bedrooms5
     Total Family Rooms0
     Total Rooms8
     Fireplaces1
Other Buildings & Yards
DescriptionBuiltWidthLengthArea
 FRAME OR CB DETACHED GARAGE 1930 24 22 528
Sales History
Sale DateTypePriceBook / PageOther Info
4/23/2003LAND & BUILDING1175001002 / 0406WARRANTY/SURVIVORSHIP DEED
8/28/1998LAND & BUILDING76000583 / 2077 



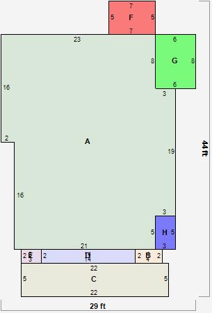
Parcel Sketches

Residential Card 1

Residential Card 1
AMAIN761 square feet
B EFP ENCL FRAME PORCH 8 square feet
C EFP ENCL FRAME PORCH 110 square feet
D FRBAY FRAME BAY FRBAY FRAME BAY 28 square feet
E EFP ENCL FRAME PORCH 6 square feet
F EFP ENCL FRAME PORCH 35 square feet
GUNFIN BSMT BASEMENT UNFINISHED 1S FR ONE STORY FRAME 48 square feet
H 1S FR ONE STORY FRAME 1S FR ONE STORY FRAME 15 square feet

Parcel Images

parcel photo