Elected Officials
Courts
Departments
Initiatives
Open Government
About
Login / Register
Home
/
Property & Tax Records
/
Property Records
/
Property & Tax Search
/
Parcel Profile
/
Print View
Search for Another Parcel
Parcel Profile
Historical Card
Sketches
Photos
Tax Map
Taxes
Print View
Print This Page
Address: 315 LAKE ST
Parcel: 23011006000900
Parcel Profile
Address
315 | LAKE | ST
Street Status
PAVED | SIDEWALK
School District
GIRARD SCHOOL
Acreage
0.2039
Classification
R
Land Use Code
SINGLE FAMILY
Legal Description
315 LAKE ST 62.5 X 141
Square Feet
1137
Topo
LEVEL
Utility
ALL PUBLIC
Zoning
Please contact your municipal zoning officer
Deed Book
2022
Deed Page
021015
2026 Tax Values
Land Value / Taxable
14,400 / 14,400.00
Building Value / Taxable
80,470 / 80,470.00
Total Value / Taxable
94,870 / 94,870.00
Clean & Green
Inactive
Homestead Status
Active
Farmstead Status
Inactive
Lerta Amount
0
Lerta Expiration Year
0
Residential Data
Card 1
Style
CAPE
Basement
FULL
Year Built
1936
Exterior Wall
FRAME
Total Living Area
1137
Full Baths
1
Half Baths
1
Fuel Type
GAS
Heating
CENTRAL
Heating System
FORCED AIR
Stories
1.0
Total Bedrooms
3
Total Family Rooms
0
Total Rooms
7
Fireplaces
0
Other Buildings & Yards
Description
Built
Width
Length
Area
FRAME OR CB DETACHED GARAGE
1936
20
19
380
Sales History
Sale Date
Type
Price
Book / Page
Other Info
9/27/2022
LAND & BUILDING
130000
2022 / 021015
SPECIAL WARRANTY DEED
3/6/1998
0
0546 / 0575
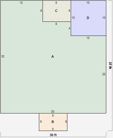
Parcel Sketches
Residential Card 1
A
MAIN
812 square feet
B
OFP OPEN FRAME PORCH
40 square feet
C
EFP ENCL FRAME PORCH
48 square feet
D
EFP ENCL FRAME PORCH
100 square feet
Parcel Images
Please note:
this tab is for informational purposes only and may not show all delinquencies, see the Taxes tab for more accurate delinquent taxes due.