Elected Officials
Courts
Departments
Initiatives
Open Government
About
Login / Register
Home
/
Property & Tax Records
/
Property Records
/
Property & Tax Search
/
Parcel Profile
/
Print View
Search for Another Parcel
Parcel Profile
Historical Card
Sketches
Photos
Tax Map
Taxes
Print View
Print This Page
Address: 330 MECHANIC ST
Parcel: 23011022001400
Parcel Profile
Address
330 | MECHANIC | ST
Street Status
PAVED | SIDEWALK
School District
GIRARD SCHOOL
Acreage
0.2562
Classification
R
Land Use Code
SINGLE FAMILY
Legal Description
330 MECHANIC ST 85X139 IRREG
Square Feet
1456
Topo
LEVEL
Utility
ALL PUBLIC
Zoning
Please contact your municipal zoning officer
Deed Book
1479
Deed Page
0169
2026 Tax Values
Land Value / Taxable
14,800 / 14,800.00
Building Value / Taxable
60,800 / 60,800.00
Total Value / Taxable
75,600 / 75,600.00
Clean & Green
Inactive
Homestead Status
Active
Farmstead Status
Inactive
Lerta Amount
0
Lerta Expiration Year
0
Residential Data
Card 1
Style
OLD STYLE
Basement
FULL
Year Built
1936
Exterior Wall
COMPOSITION
Total Living Area
1456
Full Baths
1
Half Baths
0
Fuel Type
GAS
Heating
CENTRAL
Heating System
FORCED AIR
Stories
2.0
Total Bedrooms
3
Total Family Rooms
0
Total Rooms
7
Fireplaces
0
Other Buildings & Yards
Description
Built
Width
Length
Area
FRAME OR CB DETACHED GARAGE
1945
24
24
576
Sales History
Sale Date
Type
Price
Book / Page
Other Info
12/8/1982
0
1479 / 0169
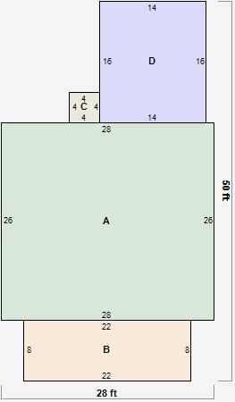
Parcel Sketches
Residential Card 1
A
MAIN
728 square feet
B
OFP OPEN FRAME PORCH
176 square feet
C
OFP OPEN FRAME PORCH
16 square feet
D
WDDCK WOOD DECKS
224 square feet
Parcel Images
Please note:
this tab is for informational purposes only and may not show all delinquencies, see the Taxes tab for more accurate delinquent taxes due.