Elected Officials
Courts
Departments
Initiatives
Open Government
About
Login / Register
Home
/
Property & Tax Records
/
Property Records
/
Property & Tax Search
/
Parcel Profile
/
Print View
Search for Another Parcel
Parcel Profile
Historical Card
Sketches
Photos
Tax Map
Taxes
Print View
Print This Page
Address: 17 MECHANIC ST
Parcel: 23012027002300
Parcel Profile
Address
17 | MECHANIC | ST
Street Status
PAVED | SIDEWALK
School District
GIRARD SCHOOL
Acreage
0.0738
Classification
R
Land Use Code
SINGLE FAMILY
Legal Description
17 MECHANIC ST LT 62.7X60 IRR
Square Feet
1336
Topo
LEVEL
Utility
ALL PUBLIC
Zoning
Please contact your municipal zoning officer
Deed Book
1358
Deed Page
2174
2025 Tax Values
Land Value / Taxable
11,500 / 11,500.00
Building Value / Taxable
37,800 / 37,800.00
Total Value / Taxable
49,300 / 49,300.00
Clean & Green
Inactive
Homestead Status
Active
Farmstead Status
Inactive
Lerta Amount
0
Lerta Expiration Year
0
Residential Data
Card 1
Style
OLD STYLE
Basement
FULL
Year Built
1936
Exterior Wall
ALUMINUM/VINYL
Total Living Area
1336
Full Baths
1
Half Baths
0
Fuel Type
GAS
Heating
CENTRAL
Heating System
FORCED AIR
Stories
2.0
Total Bedrooms
3
Total Family Rooms
0
Total Rooms
7
Fireplaces
0
Other Buildings & Yards
No OBY Data Found
Sales History
Sale Date
Type
Price
Book / Page
Other Info
8/30/2006
LAND & BUILDING
0
1358 / 2174
DEED
4/9/2002
LAND & BUILDING
37500
869 / 944
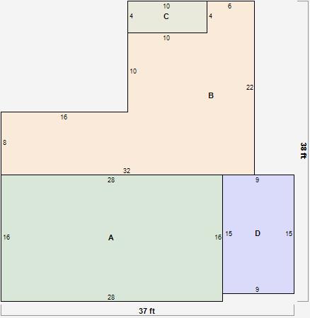
Parcel Sketches
Residential Card 1
A
MAIN
448 square feet
B
UNFIN BSMT BASEMENT UNFINISHED 1S FR ONE STORY FRAME
440 square feet
C
EFP ENCL FRAME PORCH
40 square feet
D
OFP OPEN FRAME PORCH
135 square feet
Parcel Images