Elected Officials
Courts
Departments
Initiatives
Open Government
About
Login / Register
Home
/
Property & Tax Records
/
Property Records
/
Property & Tax Search
/
Parcel Profile
/
Print View
Search for Another Parcel
Parcel Profile
Historical Card
Sketches
Photos
Tax Map
Taxes
Print View
Print This Page
Address: 230 PENN AVE
Parcel: 23012032000500
Parcel Profile
Address
230 | PENN | AVE
Street Status
PAVED | SIDEWALK
School District
GIRARD SCHOOL
Acreage
0.2061
Classification
R
Land Use Code
SINGLE FAMILY
Legal Description
230 PENN AVE 68 X 132
Square Feet
2282
Topo
LEVEL
Utility
ALL PUBLIC
Zoning
Please contact your municipal zoning officer
Deed Book
0152
Deed Page
2183
2026 Tax Values
Land Value / Taxable
14,400 / 14,400.00
Building Value / Taxable
105,070 / 105,070.00
Total Value / Taxable
119,470 / 119,470.00
Clean & Green
Inactive
Homestead Status
Active
Farmstead Status
Inactive
Lerta Amount
0
Lerta Expiration Year
0
Residential Data
Card 1
Style
OLD STYLE
Basement
PART
Year Built
1900
Exterior Wall
FRAME
Total Living Area
2282
Full Baths
1
Half Baths
0
Fuel Type
GAS
Heating
CENTRAL A/C
Heating System
FORCED AIR
Stories
2.0
Total Bedrooms
3
Total Family Rooms
1
Total Rooms
8
Fireplaces
0
Other Buildings & Yards
Description
Built
Width
Length
Area
FOUR SIDE CLOSED WD POLE BLDG
1996
30
24
720
FRAME UTILITY SHED
1985
10
12
120
Sales History
Sale Date
Type
Price
Book / Page
Other Info
3/15/1991
0
0152 / 2183
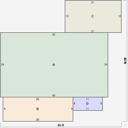
Parcel Sketches
Residential Card 1
A
MAIN
960 square feet
B
OFP OPEN FRAME PORCH
234 square feet
C
1S FR ONE STORY FRAME
252 square feet
D
UNFIN BSMT BASEMENT UNFINISHED FRBAY FRAME BAY FRBAY FRAME BAY
55 square feet
Parcel Images
Please note:
this tab is for informational purposes only and may not show all delinquencies, see the Taxes tab for more accurate delinquent taxes due.