Elected Officials
Courts
Departments
Initiatives
Open Government
About
Login / Register
Home
/
Property & Tax Records
/
Property Records
/
Property & Tax Search
/
Parcel Profile
/
Print View
Search for Another Parcel
Parcel Profile
Historical Card
Sketches
Photos
Tax Map
Taxes
Print View
Print This Page
Address: 122 PENN AVE
Parcel: 23012032001100
Parcel Profile
Address
122 | PENN | AVE
Street Status
PAVED | SIDEWALK
School District
GIRARD SCHOOL
Acreage
0.3292
Classification
R
Land Use Code
SINGLE FAMILY
Legal Description
122 PENN AVE 107.25X133.5
Square Feet
2766
Topo
LEVEL
Utility
ALL PUBLIC
Zoning
Please contact your municipal zoning officer
Deed Book
2012
Deed Page
010974
2026 Tax Values
Land Value / Taxable
15,400 / 15,400.00
Building Value / Taxable
160,200 / 160,200.00
Total Value / Taxable
175,600 / 175,600.00
Clean & Green
Inactive
Homestead Status
Active
Farmstead Status
Inactive
Lerta Amount
0
Lerta Expiration Year
0
Residential Data
Card 1
Style
OLD STYLE
Basement
FULL
Year Built
1900
Exterior Wall
ALUMINUM/VINYL
Total Living Area
2766
Full Baths
2
Half Baths
1
Fuel Type
GAS
Heating
CENTRAL A/C
Heating System
FORCED AIR
Stories
2.0
Total Bedrooms
4
Total Family Rooms
1
Total Rooms
9
Fireplaces
1
Other Buildings & Yards
Description
Built
Width
Length
Area
FLAT BARN
1900
36
30
1080
Sales History
Sale Date
Type
Price
Book / Page
Other Info
5/1/2012
LAND & BUILDING
182000
2012 / 010974
SPECIAL WARRANTY DEED
11/30/1976
0
1245 / 0424
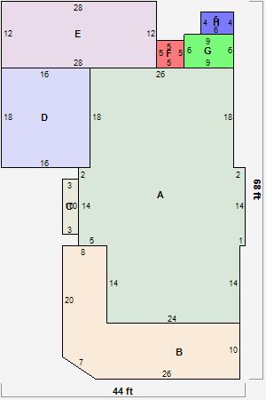
Parcel Sketches
Residential Card 1
A
MAIN
1224 square feet
B
OFP OPEN FRAME PORCH
420 square feet
C
UNFIN BSMT BASEMENT UNFINISHED FRBAY FRAME BAY
30 square feet
D
1S FR ONE STORY FRAME
288 square feet
E
WDDCK WOOD DECKS
336 square feet
F
FR UT FRAME UTILITY BUILDING
25 square feet
G
EFP ENCL FRAME PORCH
54 square feet
H
WDDCK WOOD DECKS
24 square feet
Parcel Images
Please note:
this tab is for informational purposes only and may not show all delinquencies, see the Taxes tab for more accurate delinquent taxes due.