Elected Officials
Courts
Departments
Initiatives
Open Government
About
Login / Register
Home
/
Property & Tax Records
/
Property Records
/
Property & Tax Search
/
Parcel Profile
/
Print View
Search for Another Parcel
Parcel Profile
Historical Card
Sketches
Photos
Tax Map
Taxes
Print View
Print This Page
Address: 109 PENN AVE
Parcel: 23012033001800
Parcel Profile
Address
109 | PENN | AVE
Street Status
PAVED | SIDEWALK
School District
GIRARD SCHOOL
Acreage
0.3711
Classification
R
Land Use Code
SINGLE FAMILY
Legal Description
109 PENN AVE 60 X 269.41 IRR
Square Feet
1584
Topo
LEVEL
Utility
ALL PUBLIC
Zoning
Please contact your municipal zoning officer
Deed Book
2020
Deed Page
020245
2026 Tax Values
Land Value / Taxable
15,800 / 15,800.00
Building Value / Taxable
95,140 / 95,140.00
Total Value / Taxable
110,940 / 110,940.00
Clean & Green
Inactive
Homestead Status
Active
Farmstead Status
Inactive
Lerta Amount
0
Lerta Expiration Year
0
Residential Data
Card 1
Style
OLD STYLE
Basement
FULL
Year Built
1930
Exterior Wall
FRAME
Total Living Area
1584
Full Baths
1
Half Baths
1
Fuel Type
GAS
Heating
CENTRAL A/C
Heating System
FORCED AIR
Stories
2.0
Total Bedrooms
3
Total Family Rooms
0
Total Rooms
6
Fireplaces
0
Other Buildings & Yards
Description
Built
Width
Length
Area
FRAME OR CB DETACHED GARAGE
1930
18
20
360
FRAME UTILITY SHED
1940
30
12
360
Sales History
Sale Date
Type
Price
Book / Page
Other Info
10/1/2020
LAND & BUILDING
0
2020 / 020245
QUIT CLAIM DEED
3/1/2016
LAND & BUILDING
130750
2016 / 004092
DEED
3/27/2006
LAND & BUILDING
115000
1315 / 0256
DEED
6/29/2001
0
0788 / 1058
10/5/1999
LAND & BUILDING
118000
666 / 790
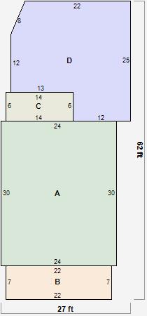
Parcel Sketches
Residential Card 1
A
MAIN
720 square feet
B
OFP OPEN FRAME PORCH
154 square feet
C
EFP ENCL FRAME PORCH
84 square feet
D
WDDCK WOOD DECKS
537 square feet
Parcel Images
Please note:
this tab is for informational purposes only and may not show all delinquencies, see the Taxes tab for more accurate delinquent taxes due.