Elected Officials
Courts
Departments
Initiatives
Open Government
About
Login / Register
Home
/
Property & Tax Records
/
Property Records
/
Property & Tax Search
/
Parcel Profile
/
Print View
Search for Another Parcel
Parcel Profile
Historical Card
Sketches
Photos
Tax Map
Taxes
Print View
Print This Page
Address: 115 PENN AVE
Parcel: 23012033001900
Parcel Profile
Address
115 | PENN | AVE
Street Status
PAVED | SIDEWALK
School District
GIRARD SCHOOL
Acreage
0.2342
Classification
R
Land Use Code
SINGLE FAMILY
Legal Description
115 PENN AVE 60 X 169.5
Square Feet
1708
Topo
LEVEL
Utility
ALL PUBLIC
Zoning
Please contact your municipal zoning officer
Deed Book
0001
Deed Page
1041
2026 Tax Values
Land Value / Taxable
14,600 / 14,600.00
Building Value / Taxable
100,130 / 100,130.00
Total Value / Taxable
114,730 / 114,730.00
Clean & Green
Inactive
Homestead Status
Active
Farmstead Status
Inactive
Lerta Amount
0
Lerta Expiration Year
0
Residential Data
Card 1
Style
OLD STYLE
Basement
FULL
Year Built
1890
Exterior Wall
ALUMINUM/VINYL
Total Living Area
1708
Full Baths
2
Half Baths
0
Fuel Type
GAS
Heating
CENTRAL
Heating System
FORCED AIR
Stories
2.0
Total Bedrooms
3
Total Family Rooms
0
Total Rooms
7
Fireplaces
0
Other Buildings & Yards
Description
Built
Width
Length
Area
FOUR SIDE CLOSED MTL POLE BLDG
2012
29
45
1305
DETACHED OPEN FR PORCH
2012
10
45
450
Sales History
Sale Date
Type
Price
Book / Page
Other Info
3/6/1987
0
0001 / 1041
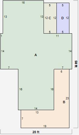
Parcel Sketches
Residential Card 1
A
MAIN
824 square feet
B
OFP OPEN FRAME PORCH
229 square feet
C
1S FR ONE STORY FRAME
60 square feet
D
EFP ENCL FRAME PORCH
60 square feet
Parcel Images
Please note:
this tab is for informational purposes only and may not show all delinquencies, see the Taxes tab for more accurate delinquent taxes due.