Elected Officials
Courts
Departments
Initiatives
Open Government
About
Login / Register
Home
/
Property & Tax Records
/
Property Records
/
Property & Tax Search
/
Parcel Profile
/
Print View
Search for Another Parcel
Parcel Profile
Historical Card
Sketches
Photos
Tax Map
Taxes
Print View
Print This Page
Address: 250 LIBERTY ST
Parcel: 23012034000900
Parcel Profile
Address
250 | LIBERTY | ST
Street Status
PAVED | SIDEWALK
School District
GIRARD SCHOOL
Acreage
0.4187
Classification
R
Land Use Code
SINGLE FAMILY
Legal Description
250 LIBERTY ST 60 X 303.65 IRR
Square Feet
812
Topo
LEVEL
Utility
ALL PUBLIC
Zoning
Please contact your municipal zoning officer
Deed Book
1330
Deed Page
0310
2026 Tax Values
Land Value / Taxable
16,100 / 16,100.00
Building Value / Taxable
44,300 / 44,300.00
Total Value / Taxable
60,400 / 60,400.00
Clean & Green
Inactive
Homestead Status
Active
Farmstead Status
Inactive
Lerta Amount
0
Lerta Expiration Year
0
Residential Data
Card 1
Style
BUNGALOW
Basement
FULL
Year Built
1900
Exterior Wall
FRAME
Total Living Area
812
Full Baths
1
Half Baths
0
Fuel Type
GAS
Heating
CENTRAL
Heating System
FORCED AIR
Stories
1.0
Total Bedrooms
2
Total Family Rooms
0
Total Rooms
4
Fireplaces
0
Other Buildings & Yards
Description
Built
Width
Length
Area
FRAME OR CB DETACHED GARAGE
1942
20
30
600
DETACHED OPEN FR PORCH
1998
18
18
324
FRAME UTILITY SHED
2025
10
12
120
Sales History
Sale Date
Type
Price
Book / Page
Other Info
5/24/2006
LAND & BUILDING
40000
1330 / 0310
DEED
6/4/1998
LAND & BUILDING
24000
566 / 89
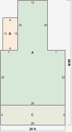
Parcel Sketches
Residential Card 1
A
MAIN
812 square feet
B
EFP ENCL FRAME PORCH
78 square feet
C
EFP ENCL FRAME PORCH
208 square feet
Parcel Images