Elected Officials
Courts
Departments
Initiatives
Open Government
About
Login / Register
Home
/
Property & Tax Records
/
Property Records
/
Property & Tax Search
/
Parcel Profile
/
Print View
Search for Another Parcel
Parcel Profile
Historical Card
Sketches
Photos
Tax Map
Taxes
Print View
Print This Page
Address: 221 PENN AVE
Parcel: 23012034001700
Parcel Profile
Address
221 | PENN | AVE
Street Status
PAVED | SIDEWALK
School District
GIRARD SCHOOL
Acreage
0.3774
Classification
R
Land Use Code
SINGLE FAMILY
Legal Description
221 PENN AVE 60X274.17
Square Feet
1316
Topo
LEVEL
Utility
ALL PUBLIC
Zoning
Please contact your municipal zoning officer
Deed Book
1638
Deed Page
0357
2026 Tax Values
Land Value / Taxable
15,800 / 15,800.00
Building Value / Taxable
62,830 / 62,830.00
Total Value / Taxable
78,630 / 78,630.00
Clean & Green
Inactive
Homestead Status
Inactive
Farmstead Status
Inactive
Lerta Amount
0
Lerta Expiration Year
0
Residential Data
Card 1
Style
OLD STYLE
Basement
FULL
Year Built
1920
Exterior Wall
ALUMINUM/VINYL
Total Living Area
1316
Full Baths
1
Half Baths
0
Fuel Type
GAS
Heating
CENTRAL
Heating System
FORCED AIR
Stories
1.5
Total Bedrooms
2
Total Family Rooms
0
Total Rooms
7
Fireplaces
0
Other Buildings & Yards
Description
Built
Width
Length
Area
FRAME OR CB DETACHED GARAGE
1989
24
44
1056
FRAME UTILITY SHED
1989
12
16
192
Sales History
Sale Date
Type
Price
Book / Page
Other Info
7/16/1986
0
1638 / 0357
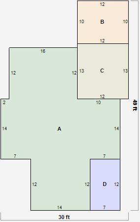
Parcel Sketches
Residential Card 1
A
MAIN
752 square feet
B
WDDCK WOOD DECKS
120 square feet
C
EFP ENCL FRAME PORCH
156 square feet
D
OFP OPEN FRAME PORCH
84 square feet
Parcel Images
Please note:
this tab is for informational purposes only and may not show all delinquencies, see the Taxes tab for more accurate delinquent taxes due.