Elected Officials
Courts
Departments
Initiatives
Open Government
About
Login / Register
Home
/
Property & Tax Records
/
Property Records
/
Property & Tax Search
/
Parcel Profile
/
Print View
Search for Another Parcel
Parcel Profile
Historical Card
Sketches
Photos
Tax Map
Taxes
Print View
Print This Page
Address: 225 MAIN ST E
Parcel: 23015048001200
Parcel Profile
Address
225 | MAIN | ST | E
Street Status
PAVED | SIDEWALK
School District
GIRARD SCHOOL
Acreage
0.8943
Classification
C
Land Use Code
RESTAURANTS, STORES (RETAIL)
Legal Description
225 MAIN ST E 117.5 X 330 IRR
Square Feet
3558
Topo
LEVEL
Utility
ALL PUBLIC
Zoning
Please contact your municipal zoning officer
Deed Book
2016
Deed Page
003550
2026 Tax Values
Land Value / Taxable
80,500 / 80,500.00
Building Value / Taxable
99,100 / 99,100.00
Total Value / Taxable
179,600 / 179,600.00
Clean & Green
Inactive
Homestead Status
Inactive
Farmstead Status
Inactive
Lerta Amount
0
Lerta Expiration Year
0
Commercial Data
Card 1
MIXED RESIDENTIAL/COMMERCIAL
Business Living Area - 3558
Year Built - 1917
Improvement Name - LOUIS PRATT INSURANCE
Value - 90570
Other Buildings & Yards
Description
Built
Width
Length
Area
FRAME OR CB DETACHED GARAGE
1917
26
48
1248
Sales History
Sale Date
Type
Price
Book / Page
Other Info
2/23/2016
LAND & BUILDING
0
2016 / 003550
QUIT CLAIM DEED
9/7/2012
LAND & BUILDING
120000
2012 / 024594
FIDUCIARY DEED
5/5/2000
0
0702 / 0265
11/1/1995
LAND & BUILDING
225000
411 / 185
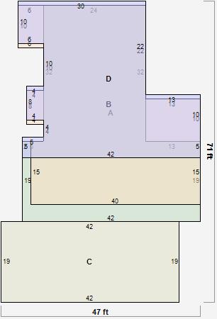
Parcel Sketches
Commercial Card 1
A
MAIN
1566 square feet
B
MAIN
1590 square feet
C
MAIN
768 square feet
D
MAIN
1200 square feet
Parcel Images
Please note:
this tab is for informational purposes only and may not show all delinquencies, see the Taxes tab for more accurate delinquent taxes due.