Elected Officials
Courts
Departments
Initiatives
Open Government
About
Login / Register
Home
/
Property & Tax Records
/
Property Records
/
Property & Tax Search
/
Parcel Profile
/
Print View
Search for Another Parcel
Parcel Profile
Historical Card
Sketches
Photos
Tax Map
Taxes
Print View
Print This Page
Address: 106 MYRTLE ST
Parcel: 23015050000800
Parcel Profile
Address
106 | MYRTLE | ST
Street Status
PAVED | SIDEWALK
School District
GIRARD SCHOOL
Acreage
0.2514
Classification
R
Land Use Code
SINGLE FAMILY
Legal Description
106 MYRTLE ST 48 X 219.42 IRR
Square Feet
1124
Topo
LEVEL
Utility
ALL PUBLIC
Zoning
Please contact your municipal zoning officer
Deed Book
0251
Deed Page
1976
2026 Tax Values
Land Value / Taxable
14,800 / 14,800.00
Building Value / Taxable
64,600 / 64,600.00
Total Value / Taxable
79,400 / 79,400.00
Clean & Green
Inactive
Homestead Status
Inactive
Farmstead Status
Inactive
Lerta Amount
0
Lerta Expiration Year
0
Residential Data
Card 1
Style
CAPE
Basement
FULL
Year Built
1930
Exterior Wall
COMPOSITION
Total Living Area
1124
Full Baths
1
Half Baths
0
Fuel Type
GAS
Heating
CENTRAL
Heating System
FORCED AIR
Stories
1.0
Total Bedrooms
2
Total Family Rooms
0
Total Rooms
6
Fireplaces
1
Other Buildings & Yards
Description
Built
Width
Length
Area
FRAME OR CB DETACHED GARAGE
1935
24
20
480
Sales History
Sale Date
Type
Price
Book / Page
Other Info
1/28/1993
0
0251 / 1976
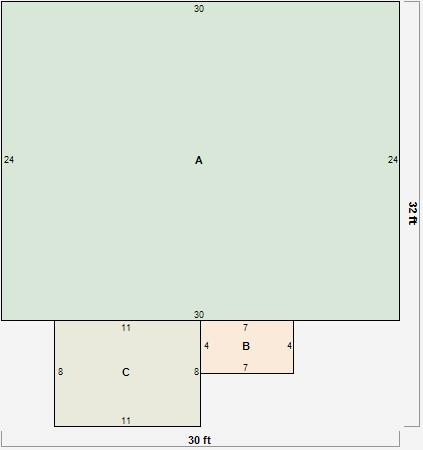
Parcel Sketches
Residential Card 1
A
MAIN
720 square feet
B
UNFIN BSMT BASEMENT UNFINISHED 1S FR ONE STORY FRAME
28 square feet
C
UNFIN BSMT BASEMENT UNFINISHED 1S FR ONE STORY FRAME
88 square feet
Parcel Images
Please note:
this tab is for informational purposes only and may not show all delinquencies, see the Taxes tab for more accurate delinquent taxes due.