Elected Officials
Courts
Departments
Initiatives
Open Government
About
Login / Register
Home
/
Property & Tax Records
/
Property Records
/
Property & Tax Search
/
Parcel Profile
/
Print View
Search for Another Parcel
Parcel Profile
Historical Card
Sketches
Photos
Tax Map
Taxes
Print View
Print This Page
Address: 330 MYRTLE ST
Parcel: 23015050002400
Parcel Profile
Address
330 | MYRTLE | ST
Street Status
PAVED | SIDEWALK
School District
GIRARD SCHOOL
Acreage
0.5444
Classification
R
Land Use Code
SINGLE FAMILY
Legal Description
330 MYRTLE ST 104X228
Square Feet
1744
Topo
LEVEL
Utility
ALL PUBLIC
Zoning
Please contact your municipal zoning officer
Deed Book
0486
Deed Page
0674
2025 Tax Values
Land Value / Taxable
17,200 / 17,200.00
Building Value / Taxable
69,060 / 69,060.00
Total Value / Taxable
86,260 / 86,260.00
Clean & Green
Inactive
Homestead Status
Active
Farmstead Status
Inactive
Lerta Amount
0
Lerta Expiration Year
0
Residential Data
Card 1
Style
OLD STYLE
Basement
PART
Year Built
1900
Exterior Wall
ALUMINUM/VINYL
Total Living Area
1744
Full Baths
1
Half Baths
0
Fuel Type
GAS
Heating
CENTRAL
Heating System
FORCED AIR
Stories
2.0
Total Bedrooms
3
Total Family Rooms
1
Total Rooms
7
Fireplaces
0
Other Buildings & Yards
Description
Built
Width
Length
Area
FLAT BARN
1900
24
20
480
FR OR CB ATTACHED GARAGE
1960
20
16
320
Sales History
Sale Date
Type
Price
Book / Page
Other Info
3/5/1997
0
0486 / 0674
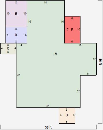
Parcel Sketches
Residential Card 1
A
MAIN
872 square feet
B
OFP OPEN FRAME PORCH
36 square feet
C
EFP ENCL FRAME PORCH
24 square feet
D
EFP ENCL FRAME PORCH
48 square feet
E
OFP OPEN FRAME PORCH
80 square feet
F
OFP OPEN FRAME PORCH
60 square feet
Parcel Images