Elected Officials
Courts
Departments
Initiatives
Open Government
About
Login / Register
Home
/
Property & Tax Records
/
Property Records
/
Property & Tax Search
/
Parcel Profile
/
Print View
Search for Another Parcel
Parcel Profile
Historical Card
Sketches
Photos
Tax Map
Taxes
Print View
Print This Page
Address: 149 LOCUST ST
Parcel: 23015050003500
Parcel Profile
Address
149 | LOCUST | ST
Street Status
PAVED
School District
GIRARD SCHOOL
Acreage
0.3864
Classification
R
Land Use Code
SINGLE FAMILY
Legal Description
149 LOCUST ST 85X198
Square Feet
2347
Topo
LEVEL
Utility
ALL PUBLIC
Zoning
Please contact your municipal zoning officer
Deed Book
2024
Deed Page
007961
2026 Tax Values
Land Value / Taxable
15,900 / 15,900.00
Building Value / Taxable
111,610 / 111,610.00
Total Value / Taxable
127,510 / 127,510.00
Clean & Green
Inactive
Homestead Status
Active
Farmstead Status
Inactive
Lerta Amount
0
Lerta Expiration Year
0
Residential Data
Card 1
Style
OLD STYLE
Basement
FULL
Year Built
1900
Exterior Wall
ALUMINUM/VINYL
Total Living Area
2347
Full Baths
1
Half Baths
1
Fuel Type
GAS
Heating
CENTRAL
Heating System
HOT WATER
Stories
1.5
Total Bedrooms
4
Total Family Rooms
0
Total Rooms
10
Fireplaces
0
Other Buildings & Yards
Description
Built
Width
Length
Area
FRAME OR CB DETACHED GARAGE
1930
20
28
560
Sales History
Sale Date
Type
Price
Book / Page
Other Info
5/29/2024
LAND & BUILDING
0
2024 / 007961
QUIT CLAIM DEED
9/28/1995
LAND & BUILDING
114900
0408 / 0306
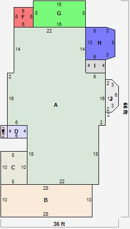
Parcel Sketches
Residential Card 1
A
MAIN
1184 square feet
B
OFP OPEN FRAME PORCH
280 square feet
C
OFP OPEN FRAME PORCH
80 square feet
D
EFP ENCL FRAME PORCH
24 square feet
E
OFP OPEN FRAME PORCH
8 square feet
F
EFP ENCL FRAME PORCH
36 square feet
G
1S FR ONE STORY FRAME
128 square feet
H
UNFIN BSMT BASEMENT UNFINISHED FRBAY FRAME BAY
87 square feet
I
1S FR ONE STORY FRAME
24 square feet
J
FRBAY FRAME BAY
36 square feet
Parcel Images
Please note:
this tab is for informational purposes only and may not show all delinquencies, see the Taxes tab for more accurate delinquent taxes due.